Pronájem bytu, 2+kk, 47 m²
Pronájem bytu 2+kk, 47m2, Praha 3, Vinohrady, M Flora
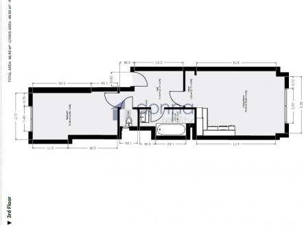
Nabízíme k pronájmu příjemný, slunný byt 2+kk, plocha cca 47 m2, ve 2.patře udržovaného činžovního domu s výtahem, ulice Šrobárova, Praha 3 - Vinohrady. Byt je po kompletní, právě dokončené rekonstrukci, je vybavený novou kuchyňskou linkou s varnou deskou, troubou a myčkou, bez nábytku, koupelna s vanou, samostatná toaleta s bidetovou sprškou. Pokoj je orientovaný na jih, ložnice do tichého vnitrobloku. V pokojích nově broušené parkety, v předsíni a koupelně dlažba, dálkové topení. Hezká část ulice sousedící s činžovními vilami, u stanice metra Flora a obchodního centra. Vhodné pro 1 - 2 osoby bez domácích mazlíčků, nekuřáci, z důvodu převodu měřidel pronájem možný pouze pro občany ČR či cizince s trvalým pobytem. Nájemné 22.000 Kč + poplatky 4.500 Kč / 1 osoba, 6.910 Kč / 2 osoby + elektřina cca 1.000 Kč. Kauce 2x nájem, provize RK 1 nájem.


