Pronájem bytu, 2+kk, 43 m²
Pronájem bytu 2+kk, 43 m2 - Praha Háje
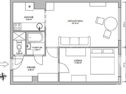
Nabízím k pronájmu pěkný nekuřácký byt po rekonstrukci v Praze Hájích dispozičně řešený jako 2+kk s užitnou plochou 43 m2. Byt se nachází v 9. patře s výtahem v pěkném, celkově revitalizovaném panelovém domě. Nově je zde vybudován bezbariérový přístup do domu. Byt prošel celkovou rekonstrukcí, zděné bytové jádro - koupelna s vanou a toaletou. Nová kuchyňská linka s plynovým sporákem a troubou, nová lednice s mrazákem. Nové plovoucí podlahy. Byt se pronajímá částečně zařízený. Z prostorné předsíně se vchází do všech místností v bytě. Koupelna je spojena s toaletou, vybavená je vanou a umyvadlem, zrcadlovou skříňkou, pračka k dispozici. Ložnice (12 m2) je vybavena postelí 160 x 200 cm a nočním stolkem. Dominantou je prostorný obývací pokoj (16 m2) propojený s útulným kuchyňským koutem. K dispozici je rozkládací sofa, TV, regály sloužící jako úložné prostory, jídelní stůl se židlemi. Kuchyňská linka je nová, disponuje velkým dřezem, novou lednicí s mrazákem, plynovým sporákem s troubou a digestoří. Pronájem činí 19.900,-- Kč měsíčně, veškeré služby včetně elektrické energie jsou 6.000,-- Kč/měsíčně. Vratná kauce pronajímateli činí 19.900,-- Kč, odměna zprostředkovatele je 19.900,-- Kč. Byt je volný od 1.3.2026. V případě zájmu o termín prohlídky mne kontaktujte telefonicky.


