Pronájem bytu, 2+1, 60 m²
Pronájem bytu 2+1 se dvěma balkony nedaleko metra, Kobylisy
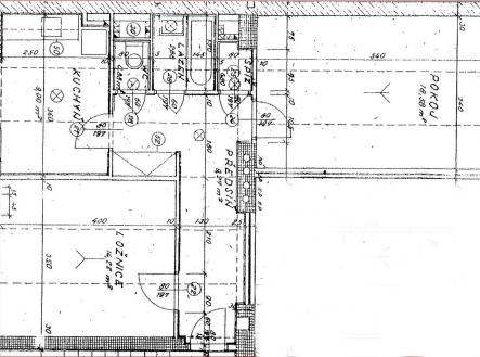
Nabízíme k pronájmu byt 2+1 se dvěma balkony a komorou, umístěný v prvním patře staršího cihlového domu v Praze 8 Kobylisích. Byt o velikosti cca 60 m2 je kompletně vybaven starším nábytkem. V bytě jsou dva samostatné neprůchozí pokoje, menší kuchyň, předsíň, koupelna se sprchovým koutem, WC a komora. Do všech místností je vstup z centrální předsíně. Z jednoho pokoje se západní orientací a z kuchyně s východní orientací jsou vstupy na balkony. Dům se nachází v atraktivní lokalitě v blízkosti stanice metra. V okolí je kompletní občanská vybavenost i dostatek zeleně.


