Pronájem bytu, 2+1, 53 m²
Pronájem bytu 2+1, Práčská, Záběhlice, 53 m2
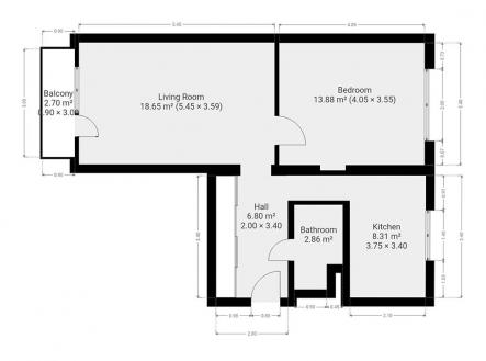
K dlouhodobému podnájmu Vám nabízíme krásný, prosluněný, kompletně zařízený byt o dispozici 2+1 s celkovou užitnou plochou 53m². Nachází se ve 2. patře udržovaného cihlového domu s výtahem, ve velmi klidné, přesto dobře dopravně dostupné lokalitě s kompletní občanskou vybaveností nadosah. Skládá se ze vstupní chodby vybavené velkou šatní skříní, samostatné ložnice, obývacího pokoje se vstupem na zasklenou lodžii a kuchyně. Kuchyně je zařízena spotřebiči - lednice, myčka, trouba, varná deska a digestoř Společná koupelna s toaletou je vybavena sprchovým koutem, koupelnovou skříňkou s umyvadlem. V bezprostředním okolí domu se nachází veškerá občanská vybavenost. Autobusová zastávka "Práčská" je doslova před domem. Necelých 5 minut chůze je velké obchodní centrum VIVO! Hostivař, kde najdete kompletní sít obchodů a služeb. Zde je také Tramvajová zastávka s linkami 13, 22 a 26. Byt je k dispozici od 1.3.2026. Zálohové platby už obsahují zálohy na elektřinu a pojištění domácnosti.


