Pronájem bytu, 2+1, 58 m²
Pronájem bytu 2+1, Na Petřinách, Břevnov, 21900 Kč/měs, 58 m2
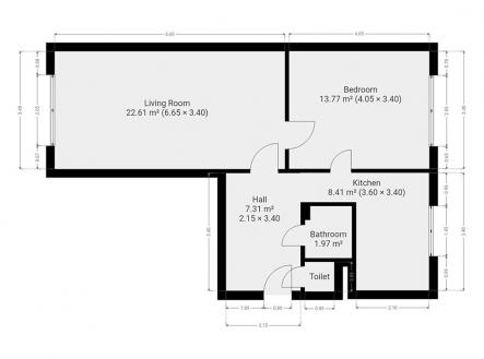
K dlouhodobému podnájmu nabízíme světlý byt o dispozici 2+1 v oblíbené lokalitě Praha 6 - Břevnov. Byt o celkové výměře 58 m² se nachází v 1. patře udržovaného panelového domu bez výtahu. K bytu přísluší sklepní kóje. Byt se nabízí volný k zařízení dle vlastních představ. Kuchyně disponuje lednicí s mrazákem, myčkou, elektrickou troubou, varnou deskou, mikrovlnnou troubou, digestoří a pračkou. Obývací pokoj je nezařízený, v ložnice je šatní skříň (ostatní nábytek na fotografiích bude vyklizený). V koupelně je vana, umyvadlo, zrcadlo a koupelnová skříňka. WC je umístěno samostatně. V okolí domu se nachází restaurace a kavárny, supermarkety, drogerie, pošta, lékárna, městská knihovna, veřejná zeleň (Břevnovská klášterní zahrada, Zámecký park Veleslavín, Obora Hvězda, Park Ladronka) atd. Přímo u domu je tramvajová zastávka a stanice metra A - Petřiny. Majitel preferuje zájemce bez domácích mazlíčků. Byt je volný k nastěhování od 1. 3. 2026, prohlídky jsou možné už nyní. Energetická třída: D (méně úsporná).


