Pronájem bytu, 2+1, 57 m²
Pronájem bytu 2+1, Jasmínová, Záběhlice, 57 m2
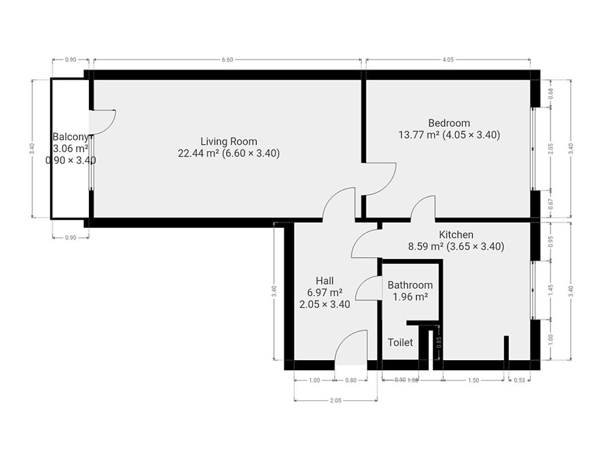
Nabízíme vám k dlouhodobému podnájmu příjemně prosvětlený byt o dispozici 2+1 a celkové výměře 56 m², situovaný v klidné a žádané lokalitě pražských Záběhlic. Byt se nachází v přízemí pečlivě udržovaného panelového domu s výtahem a jeho velkou předností je přilehlý balkon spolu s praktickou sklepní kójí pro uložení sezónních věcí. Interiér je nabízen jako částečně vybavený, což vám dává ideální prostor pro zařízení domova přesně podle vlastního vkusu a potřeb. Kuchyně disponuje veškerým nezbytným zázemím včetně lednice s mrazákem, elektrické trouby, sporáku a digestoře, přičemž nechybí ani prostor pro útulný jídelní kout. Dispozice dále zahrnuje dva samostatné neprůchozí pokoje, které nabízejí variabilní využití jako ložnici, obývací pokoj nebo klidnou pracovnu. Koupelna je osazena sprchovým koutem, umyvadlem i pračkou, zatímco toaleta je pro maximální komfort řešena samostatně. Okolí domu vyniká kompletní občanskou vybaveností, díky které máte vše důležité doslova na dosah ruky. Pár minut chůze od vchodu najdete supermarkety Tesco a Penny, poštu, lékárnu i kvalitní lékařskou péči. Volný čas můžete trávit v blízkém parku Meandry Botiče, který je oázou klidu v městské zástavbě, nebo využít širokou nabídku místních sportovišť a restaurací. Skvělou dopravní dostupnost do ostatních částí Prahy zajišťují frekventované zastávky autobusů a tramvají v bezprostřední blízkosti domu. Byt je volný k nastěhování ihned. Energetická třída: G (průkaz nedodán)


