Pronájem bytu, 2+1, 68 m²
Pronájem bytu 2+1 68 m², Praha
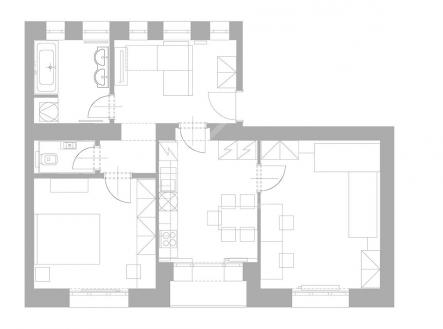
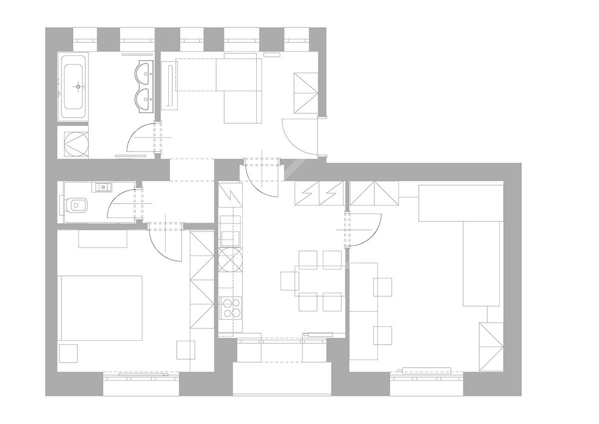
Pronájem světlého bytu 2+1, 68 m² s lodžií – Praha 5, Na Pláni Nabízíme k pronájmu prostorný a kompletně zrekonstruovaný byt 2+1 o velikosti 68,1 m² s lodžií, situovaný v 1. NP udržované vily v klidné ulici Na Pláni. Díky jižní orientaci je byt velmi světlý a příjemný. Dispozice: obytná hala (lze využít i jako třetí pokoj), kuchyň s jídelnou, dvě samostatné ložnice, koupelna s vanou, samostatná toaleta, lodžie. K vybavení náleží nová kuchyňská linka se spotřebiči (trouba, myčka, lednice s mrazákem, varná deska). K dispozici je společná zahrada pro nájemníky. Parkování možné na ulici. Měsíční zálohy na služby 2.500 Kč Měsíční zálohy na 3.500 Kč za topení, elektřina a internet. Kauce 2x nájem, provize ve výši jednoho nájemného. K nastěhování ihned.


