Pronájem bytu, 1+kk, 30 m²
Pronájem bytu 1KK na stanici metra Zličín
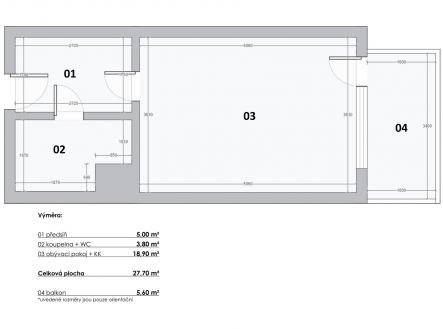
Nabízím možnost pronájmu částečně zařízeného bytu 1+kk, který se nachází v docházkové vzdálenosti od metra Zličín v Praze, v ulici K metru. Tento moderní byt nabízí užitnou plochu o velikosti 27,7 m², balkon 5,6 m² a čistý světlý sklep 3,6 m² (dohromady činí celková užitná plocha 36,9 m²). Byt se nachází ve 2. patře klidného cihlového domu s výtahem a zaručuje bezbariérový přístup z ulice přímo do bytu. Z energetického hlediska (PENB) patří byt do kategorie B, což zajišťuje nízké provozní náklady, dům je vytápěn centrálně. Byt zatím nebyl obýván a je proto v perfektním stavu. Interiér bytu je částečně zařízen a nabízí moderní vybavení včetně vestavěné lednice s mrazákem, elektrické varné desky, vestavěné elektrické trouby a digestoře. Dále je k dispozici nový praktický rozkládací gauč, skříň, stůl, a závěsy včetně záclon. Výborná dostupnost do centra města i na Letiště Václava Havla. V okolí naleznete kompletní občanskou vybavenost včetně obchodů, služeb, škol a zdravotnických zařízení. Nájemné činí 17 500 Kč za měsíc, zálohy na služby 2 564 Kč, elektřina bude předena na nájemníka. Kauce je stanovena na 20 000 Kč. Provize za zprostředkování činí 20 000 Kč plus DHP. Byt je k dispozici ihned, majitel preferuje dlouhodobý pronájem. Ideální bydlení pro jednotlivce nebo pár.


