Pronájem bytu, 1+kk, 24 m²
Pronájem bytu 1+kk, Salačova, Uhříněves, 24 m2
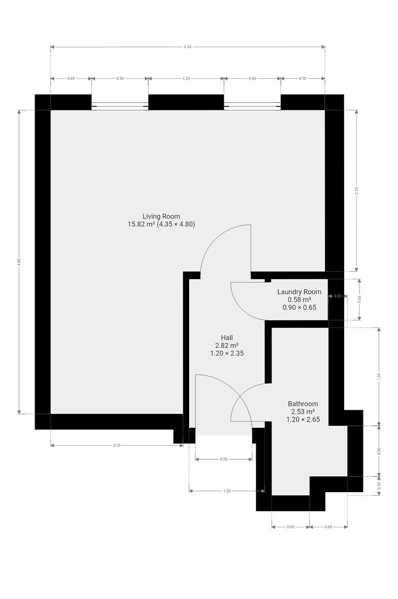
K dlouhodobému podnájmu nabízíme světlý a útulný byt 1+kk v klidné lokalitě Praha 22 – Uhříněves. Byt o celkové výměře 24 m² se nachází ve 2. patře udržovaného bytového domu. K bytu náleží i praktický sklep. Byt je částečně vybavený, což umožňuje doladit si interiér podle vlastního vkusu. Kuchyně je vybavena elektrickou troubou, varnou deskou, digestoří a dostatečným úložným prostorem. Obytná část je připravena k vybavení dle představ podnájemníka. Koupelna disponuje sprchovým koutem, umyvadlem a toaletou, součástí bytu je i komora s pračkou. V okolí domu je kompletní občanská vybavenost – obchody s potravinami, supermarket Billa, restaurace, kavárny, lékařská péče, pošta i sportovní hřiště. Pro volný čas a odpočinek je ideální Obora v Uhříněvsi. Výbornou dopravní dostupnost zajišťuje autobusová a vlaková doprava, která pohodlně spojuje Uhříněves s centrem Prahy. Byt je volný k nastěhování 15.06.2026 Energetická třída: G (průkaz nedodán).


