Pronájem bytu, 1+kk, 39 m²
Pronájem bytu 1+kk s prostornou terasou, 50 m², Praha Kbely
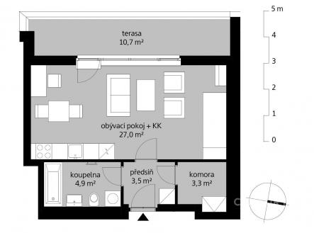
Představujeme Vám útulný byt o dispozici 1+kk o celkové ploše 39 m² s prostorným balkonem o výměře 11 m², který je k dispozici k pronájmu. Byt se nachází v 6. nadzemním podlaží moderního bytového domu v klidné části pražských Kbel. Nabízí pohodlné a příjemné bydlení s krásným výhledem do okolí. Interiér je vybaven kuchyňskou linkou se všemi potřebnými spotřebiči včetně pračky, takže je připraven k okamžitému nastěhování bez nutnosti dalších investic. Lokalita Kbel je velmi vyhledávaná především pro své klidné prostředí a dostatek zeleně. V docházkové vzdálenosti se nachází oblíbený Lesopark Letňany, který nabízí dětská hřiště, cyklostezky, griloviště a řadu možností pro aktivní i odpočinkové trávení volného času, a to jak pro jednotlivce, tak pro rodiny s dětmi. Přímo u domu se navíc nachází mateřská škola, což je velkou výhodou zejména pro mladé rodiny. Dopravní dostupnost je velmi dobrá, městská hromadná doprava zajišťuje snadné a rychlé spojení do centra Prahy i dalších městských částí. Lokalita tak ideálně kombinuje klidné bydlení v zeleni s veškerými výhodami velkoměsta na dosah ruky. Tento byt je skvělou volbou pro ty, kteří hledají moderní, útulné a komfortní bydlení v příjemném prostředí. Majitel požaduje vratnou kauci (jistotu) ve výši 20.000 Kč. Měsíční nájemné je 17.000 Kč + zúčtovatelná záloha na služby ve výši 3.500 Kč + zálohy elektřiny převádějí se na nájemníka. Těším se na společné setkání při prohlídce tohoto bytu.


