Pronájem bytu, 2+kk, 48 m²
Pronájem byt 2+kk, 43㎡
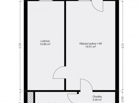
Ve výhradním zastoupení majitele nabízíme k dlouhodobému pronájmu útulný a velmi klidný byt o dispozici 2+kk o podlahové ploše 43 m², umístěný v bytovém domě z roku 2009 v ulici Peluškova, Praha 14 - Kyje. K bytu náleží balkon o výměře cca 3 m², zděná komora na patře (cca 2 m²). Příslušenství není započítáno do podlahové plochy bytu. Nespornou výhodou v dané lokalitě je parkovací stání v suterenu domu. Byt je ideální pro jednotlivce, případně pár, který hledá dlouhodobé bydlení v klidném prostředí s velmi dobrou dostupností do centra Prahy. Dispozice bytu - vstupní předsíň - obytný prostor s kuchyňským koutem, - koupelna s vanou a WC, - balkon (cca 3 m²) - zděná komora na patře (cca 2 m²) - ložnice Vybavení bytu - byt je částečně vybavený a připravený k okamžitému nastěhování - předsíň s botníkem, zrcadlem a malou skříňkou - kuchyňský kout včetně spotřebičů (myčka, trouba, varná deska, lednice Fagor), jídelní stůl + 4 židle - v ložnici komoda + mořnost odkoupení 6 měsíců staré postele - v koupelně je pračka AEG - vytápění a ohřev vody řešeno plynovým kotlem umístěným přímo v bytě - nájemník má plnou kontrolu nad svou spotřebou tepla - plyn i elektřina budou převedeny na nájemníka - dům z roku 2009, udržovaný, s klidným vnitroblokem, ve vstupu potraviny. Podmínky nájmu - nájemné: 20.500 Kč / měsíc - poplatky za domovní služby: 2.500 Kč / měsíc / 1 os., 3.000 / 2os. (hrazeny nad rámec nájemného) - elektřina a plyn budou převedeny na nájemníka - parking 1.500 Kč / měsíc - kauce: 23.000 Kč - provize: 25.000 Kč K nastěhování - ihned / dle dohody - preferován dlouhodobý nájemní vztah, nájemní smlouva z počátku na 1.rok s možností automatického prodloužení Ulice Peluškova v Kyjích nabízí kombinaci klidného bydlení a výborné dopravní dostupnosti: - cca 5 minut pěšky na metro B – Rajská zahrada - v docházkové vzdálenosti vlakové nádraží Rajská zahrada s přímým spojením na Masarykovo nádraží - obchod i restaurace přímo před domem Lokalita je ideální pro každého, kdo chce bydlet v klidu, ale zároveň mít rychlou dostupnost centra. Pro komunikaci uvádějte evidenční číslo zakázky N116052.


