Pronájem - kanceláře, 100 m²
Pronájem 5 kanceláří o ploše 100 m2, Praha 5 Smíchov, nezařízeno
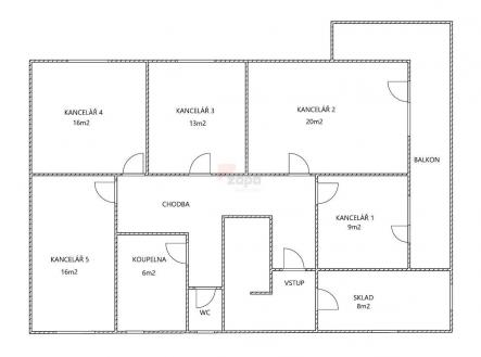
Exkluzivně nabízíme pronájem pěti kanceláří o celkové výměře 100 m2 + sklad 8 m2 + garáž 20 m2 na adrese Praha 5 Smíchov, ulice U Plátenice. Jedná se o celé 2. podlaží rodinného domu s balkonem a krásným výhledem na Prahu. Garáž je v úrovni ulice. Prostory jsou v dobrém stavu, pod samostatným uzamčením, vchodové dveře jsou bezpečnostní. Kanceláře se nabízejí jako nezařízené. Součástí prostor je vlastní koupelna + samostatné WC, PC síť, je dostupný vysokorychlostní internet, k dispozici je alarm s napojením na PCO. Součástí prostor je klimatizace. Okolní vilová čtvrť je tichá, klidná, s dostatkem zeleně. Je zde výborné spojení autem do centra a na Pražský okruh. Autobusová zastávka je vzdálena 3 minuty chůze, za 11 minut se dostanete na Karlovo Náměstí. Majitel požaduje složení jistoty ve výši 35.000,-Kč, provize činí 14.000,-Kč., zúčtovatelné poplatky 5.000,-Kč včetně elektřiny, která je měřená podružným elektroměrem. Prostory jsou k nastěhování ihned, prohlídka je možná po dohodě.


