Prodej bytu, 2+kk, 43 m²
Prodej zrekonstruovaného bytu 2+kk (43,4 m2) s lodžií a garážovým stáním, Praha 8 -Troja, Hnězdenská
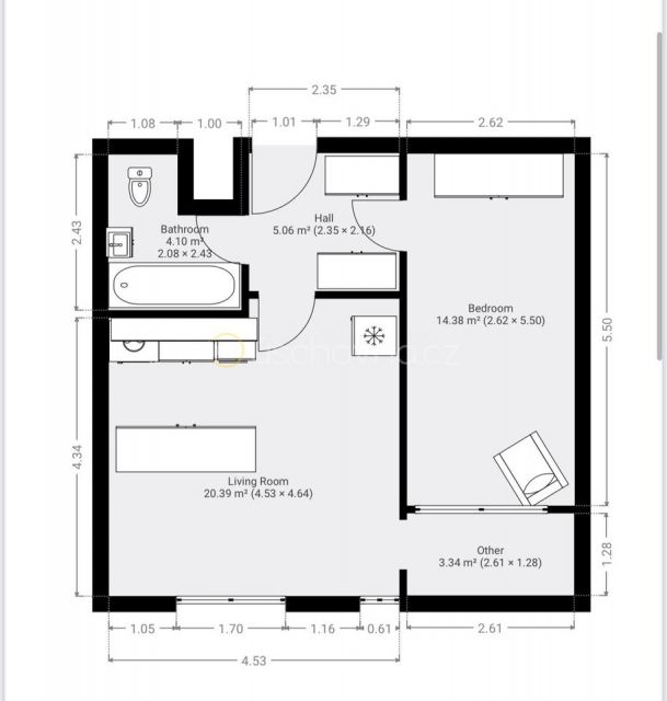
Nabízíme na prodej kompletně zrekonstruovaný byt 2+kk o ploše 43,4 m2 se zasklenou lodžií, umístěný v 8. patře cihlového domu s výtahem ve vyhledávané lokalitě Prahy 8 - Troja, ulice Hnězdenská. K bytu náleží garážové stání. Z bytu nádherný výhled. Byt je po celkové rekonstrukci z roku 2024. K bytu nenáleží žádný sklep. Osobní vlastnictví. Koupi bytu lze financovat hypotéčním úvěrem. Ihned volné k nastěhování.Cena: byt 7 000 000 Kč + garážové stání 500 000 Kč = 7 500 000 Kč.V ceně není zahrnuta provize RK.Kompletní občanská vybavenost v okolí (ZŠ, MŠ, restaurace, obchody, služby, OC Krakov, vysoká škola hotelové, kulturní dům Krakov, poliklinika). Vynikající dopravní dostupnost (bus). Velkou výhodou je docházková vzdálenost k Botanické zahradě nebo ZOO.Ukazatel energetické náročnosti: B


