Prodej - dům/vila, 173 m²
Prodej vily 173 m², pozemek 360 m2, Praha 4 - Chodov
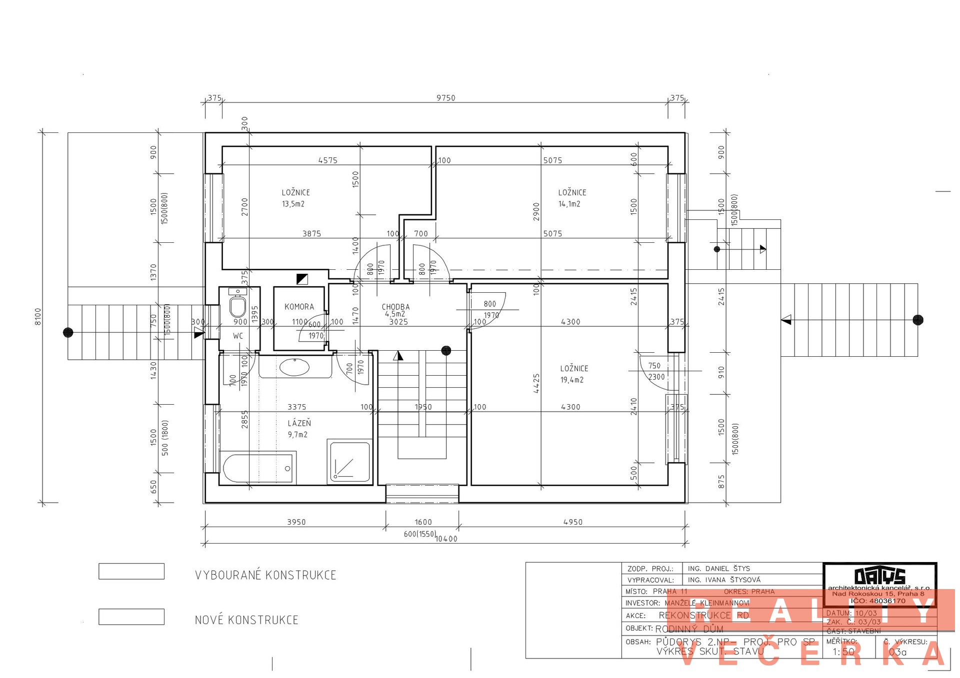
Nabízíme k prodeji vilu v Praze 4, Chodov, v ulici 7. května. Je vhodná jak pro rodinné bydlení, tak pro komerční využití. Se sousedním domem tvoří dvojdomek, oba domy jsou na sobě nezávislé jak užíváním, tak vlastnictvím. Tato část Chodova je tvořená rodinnými domy, ulice 7. května je ulicí vedlejší, provoz je zde minimální. Vila byla postavená v roce 1980 a v roce 2005 prošla velkou rekonstrukcí. Jde o tradiční cihlovou stavbu z 90. let minulého století, kdy byl dáván důraz na prostorné obytné místnosti, které zajistí pohodlí obyvatelům domu. Zastavěná plocha je 94 m2, zahrada je o ploše 266 m2. Vila má dvě nadzemní podlaží a dále jedno podzemní. Zastavěná plocha hlavní stavbou je 84 m2. Celý dům je podsklepený. 1. nadzemní podlaží Dominantní je zde obývací pokoj (31 m2) spojený s jídelním koutem (4,3 m2). Z obývacího pokoje je vstup do kuchyně, dále na terasu a z ní do zahrady. Kuchyně je zařízená kuchyňskou linkou a spotřebiči. K vaření je využívaný kombinovaný sporák elektrika – plyn. Dále je zde samostatné WC s umyvadlem. Z chodby vede schodiště do 1. patra a do sklepa. 2. nadzemní podlaží Toto patro tvoří tzv. klidovou zónu – jsou zde 3 ložnice (19,4 m2, 14,1 m2 a 13,5 m2), prostorná koupelna s vanou a sprchovým koutem, samostatné WC a komora Z jedné ložnice lze vstoupit na balkon s vyhlídkou do zahrady. Tyto prostory mohou sloužit nejen jako ložnice, ale i jako kanceláře, hostinské pokoje atd. Suterén Do suterénu lze vstoupit z přízemí domu nebo zvenčí přes garáž (26,3 m2), či samostatným vstupem ze zahrady. Mimo garáž jsou zde prostory na technické zázemí – plynový kotel na vytápění domu zn. Vailland, sušárna prádla, úložné místnosti. Garážová vrata jsou na dálkové ovládání Zahrada domu Je pojata jako okrasná, je jí věnovaná odborná péče. Zajišťuje místo pro relaxaci. Rekonstrukce vily proběhla v roce 2005 a zahrnuje: - elektronické zabezpečení proti násilnému vniknutí. Zabezpečení je napojeno na pult centrální ochrany bezpečnostní agentury - zateplení budovy systémem BAUMIT (polystyren o tloušťce 14 cm a nová střešní krytina - omyvatelná fasáda domu - dřevěná okna s dvojskly a s bezpečnostní folií proti násilnému vniknutí do budovy - ve všech obytných místnostech masivní dubové parkety, v dalších dlažba - nová elektroinstalace, plastové vodovodní a odpadní potrubí - nový kotel zn. Vailland pro vytápění a ohřev vody - kuchyňská linka - automatická garážová vrata - venkovní dlažba okolo domu a na terase. Na domě lze vystavět 3. nadzemní podlaží, obdobně jako u sousedního domu. Ve fotografiích u této nemovitosti je formou vizualizace ukázáno jak může nástavba vypadat. Může ale vypadat i podle vašich představ. Ze sítí je napojení na městský vodovod a tlakovou kanalizaci, plyn, elektřinu – dvě i tři fáze, pojistky 3x25 A. K parkování vozidel lze využít garáž pro 2 auta, dále prostor před garáží, nebo na ulici (není zde modrá zóna). Na listu vlastnictví nejsou žádná omezení užívání nemovitosti. Metro Opatov je vzdálené 600 m chůze, Obchodní centrum Westfield (stanice metra Chodov) autem 6 minut. Koupi lze financova hypotékou, kterou vám zdarma zajistíme. Pro další informace kontaktujte makléře.


