Prodej - dům/vila, 96 m²
Prodej rodinného domu s plochou 453 m²
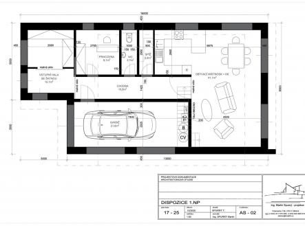
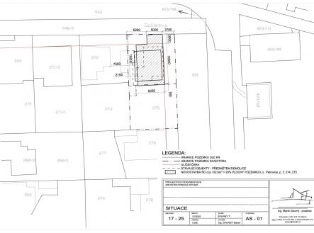
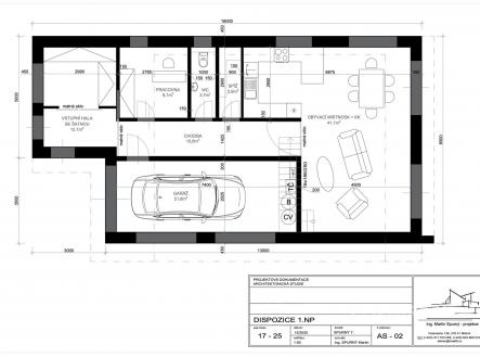
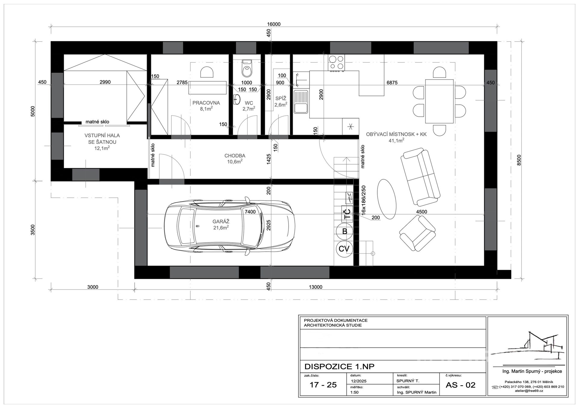
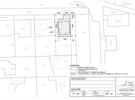
Nabízíme k prodeji atraktivní pozemek se stávajícím rodinným domem 3+1 v ulici Galvaniho v klidné části Prahy – Petrovice. Nemovitost představuje výbornou příležitost pro ty, kteří hledají místo s potenciálem vytvořit si bydlení přesně podle svých představ – ať už formou kompletní rekonstrukce stávajícího domu, nebo demolicí a výstavbou zcela nového rodinného domu. Celková plocha pozemku činí 453 m². Dům je napojen na veškeré inženýrské sítě, přičemž elektřina a plyn jsou v současnosti odpojeny. K dispozici je také návrh nového domu s dispozicí 5+kk s garáží a celkovou užitnou plochou 156,3 m². Užitnou plochu je možné dále navýšit dle zvoleného řešení. Lokalita zaujme především kombinací klidného rezidenčního prostředí a velmi dobré dopravní dostupnosti. Autobusem 125 se z nedaleké zastávky (cca 350 m) dostanete přibližně za 13 minut na metro Háje. V opačném směru dojedete na metro Skalka ze zastávky vzdálené cca 250 m zhruba za 24 minut. K dispozici je také autobus 240 na metro Černý Most, kam se ze zastávky vzdálené cca 250 m dostanete přibližně za 35 minut. V bezprostředním okolí naleznete kompletní občanskou vybavenost – místní úřady, školku, školu včetně anglické školy, poštu, restaurace, sportovní hřiště i další služby. Nákupní a volnočasové možnosti jsou rovněž na dosah, například supermarket Albert přibližně 5 minut od domu či fitness s provozem 24/7. Nemovitost je možné financovat hypotečním úvěrem. Tento dům je ideální volbou pro rodiny, které hledají klidné bydlení v rámci Prahy, a současně chtějí mít rychlý a pohodlný přístup do centra města. Díky své lokalitě a výraznému potenciálu nabízí mimořádně zajímavou investiční příležitost. Domluvte si prohlídku ještě dnes a přijďte se osobně přesvědčit o kvalitách této nabídky.


