Prodej - dům/vila, 182 m²
Prodej rodinného domu o dispozici 6+1 s terasou a garáží, pozemek 679m2, Praha – Újezd nad Lesy
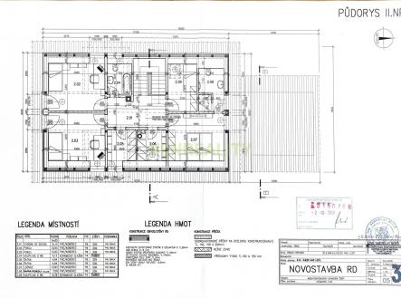
K prodeji si vám dovolujeme nabídnout samostatně stojící rodinný dům o dispozici 6+1 s terasou a garáží, s užitnou plochou 182 m2 + venkovní terasou 11,5 m2, umístěný na pozemku o celkové výměře 679 m2, v městské části Prahy - Újezdu nad Lesy. Dům se nachází v klidné zástavbě rodinných domů s minimálním dopravním zatížením. Dům je postavený v roce 2009, jako dřevo stavba s tepelným obložením z venkovní strany, zastavěná plocha domu činí 139 m2, přilehlá zahrada s již vzrostlou vegetací má rozlohu 540 m2. Parkování je zajištěno na pozemku, resp. v garáži a k dispozici je i plocha za vjezdovou bránou. Dům má celkem dvě nadzemní podlaží, s prakticky řešenou vnitřní dispozicí, dům je vhodný i pro více člennou rodinu. Půdorysy jednotlivých podlaží domu naleznete ve fotodokumentaci. Přízemí domu tvoří vstupní chodba, prostorná kuchyně s jídelním koutem, doplněná o praktickou komoru, obývací pokoj s přímým vstupem na venkovní zastřešenou terasu, technická místnost, sociální zařízení, a dále prostory kosmetického salónu přístupné jak z domu, tak samostatným vchodem z pozemku. Vzhledem k tomu, že kosmetický salon je přístupný i ze vstupní chodby domu, lze prostor využít jako další pokoj. V patře domu pak najdete prostornou centrální chodbu, ložnici s vlastní koupelnou (sprchový kout + toaleta), dva pokoje, dále pokoj pro hosty, dvě šatny a koupelnu s vanou a toaletou. Dům je vytápěn plynovým kotlem Vaillant (ústřední vytápění), vytápění domu lze změnit i na vytápění pomocí tepelného čerpadla. Voda je řešena z obecního vodovodního řadu, odpad je sveden do obecní kanalizace. Na zalévání zahrady je možné využít vodu ze studny. K příjemnému bydlení v této lokalitě přispívá nejen blízkost přírody v podobě nedalekého Klánovického lesa, ale i možnost volnočasového či sportovního vyžití (cyklostezky, dětská hřiště, nedaleká sportovní hala Štěrboholy). Městská čtvrť Újezd nad Lesy disponuje kompletní občanskou vybaveností, včetně mateřské a základní školy, úřadu, pošty, praktického lékaře, koloniálních obchodů i supermarketů a restaurací. Dopravní dostupnost: autobusy MHD navazující na metro trasa B (Černý most), vlakem se do centra Prahy dostanete z Újezdu-Klánovic na Masarykovo nebo Hlavní nádraží cca do 20 minut, autem je cesta do centra Prahy asi nejnáročnější, aktuálně je potřeba počítat cca 45 min. (situace se snad podstatně zlepší po dokončení dopravního obchvatu v roce 2027). Prohlídku této nemovitosti Vám vřele doporučujeme a těšíme se na setkání se všemi zájemci, kteří o prohlídku projeví zájem. Koupi této nemovitosti lze financovat hypotečním úvěrem. Poznámka: Průkaz energetická náročnost budovy (PENB) zatím nebyl dodán, proto je dle zákona uvedena energetická třída G, jakmile bude průkaz k dispozici, energetická třída bude v inzerci upravena.


