Prodej - dům/vila, 116 m²
Prodej rodinného domu 5+1, 116m², V lipách, Praha - Koloděje
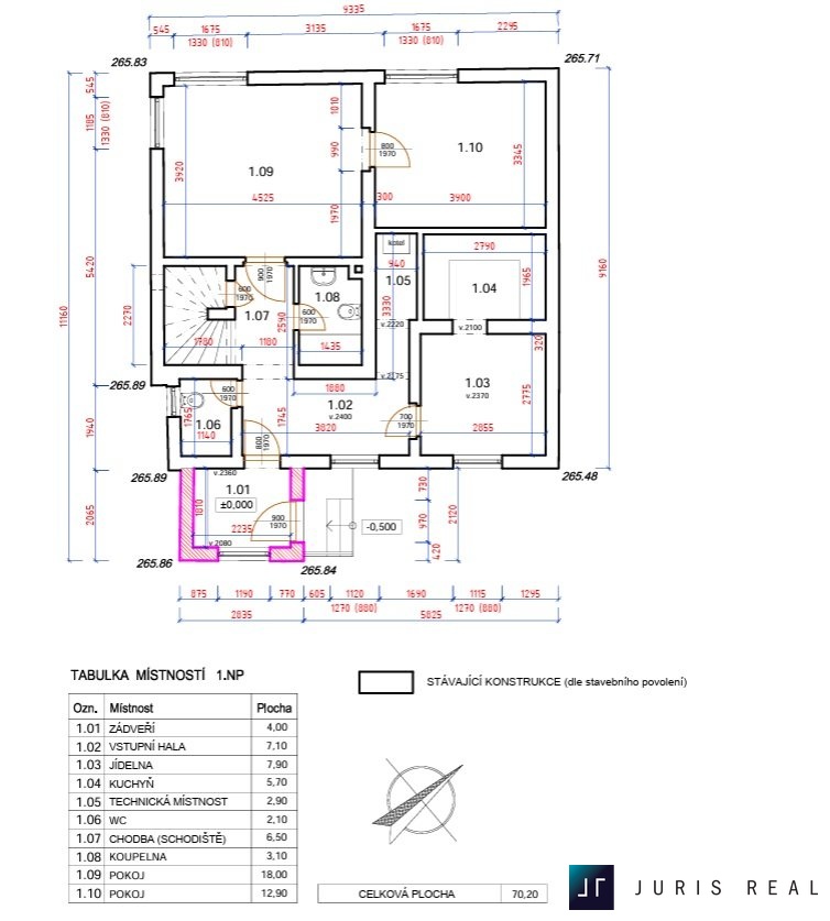
Nabízíme k prodeji prostorný cihlový rodinný dům o dispozici 5+1 a užitné ploše 116 m², který se nachází na pozemku o velikosti 453 m². Dům je napojen na veškeré přípojky (kanalizaci, vodovod, elektřina a plyn) a zároveň má i vlastní studnu. Dům nedávno prošel kompletní rekonstrukcí přízemí, včetně rozvodů, nové koupelny a podlah. Katastrálně se nachází už v Kolodějích, ale polohou v Újezdě nad Lesy. Možná i výměna za jinou nemovitost. V případě Vašich dotazů, volejte kdykoliv.


