Prodej - dům/vila, 290 m²
Prodej rodinného domu 290 m2 Ke Džbánu, Praha
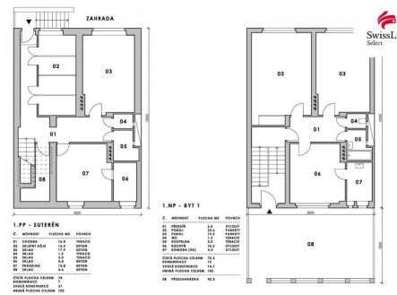
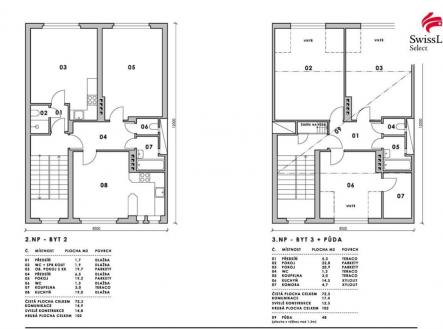
Rodinný dům v klidné ulici Ke Džbánu, jen 3 minuty chůze od tramvajové zastávky Divoká Šárka. Přímý výhled do zeleně, skvělá dostupnost do centra i na letiště, přírodní rezervace za rohem. Čtyři nadzemní podlaží včetně půdy a jedno podzemní. Každé patro má výměru cca 102 m, celková užitná plocha tedy činí 408 m. Na pozemku o celkové výměře 332 m se nachází také zahrada o rozloze 230 m. Dispozice domu je aktuálně připravena pro 5 samostatných bytových jednotek, zapsání v katastru zatím neproběhlo. Půdní prostor umožňuje další rozšíření například o dvě další bytové jednotky. Stav nemovitosti vyžaduje kompletní rekonstrukci. Požár způsobený nedopalkem zanechal interiér začouzený, statika i konstrukce domu však zůstaly neporušené. Majitel již zahájil výmalbu a základní obnovu prostoru. Investiční potenciál je zásadní. Vzniknout může projekt nájemního bydlení, bytový dům k prodeji nebo vícegenerační rodinné bydlení. Dům není zatížen právními vadami a je ihned k dispozici. Zaujalo Vás to? Zavolejte si a rovnou si domluvte prohlídku. Podobné příležitosti v této části Prahy se objevují jen výjimečně.


