Prodej - dům/vila, 196 m²
Prodej RD, 8+1, pozemek 769 m2, sklep, garáž, bazén, Praha 6
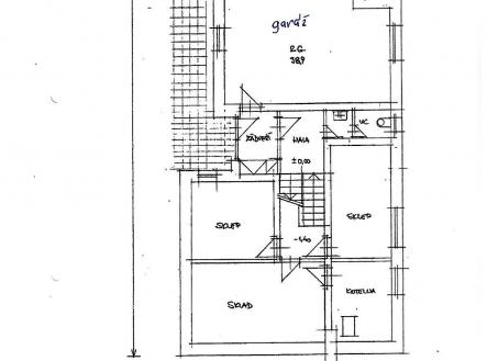
Hledáteli harmonické místo s klidnou energií domova, interiéry prostorné a plné světla po celý rok, jste na správném místě. Rodinný dům v klidné části Prahy 6 Suchdola, energeticky úsporný s dispozicí 8+1 se 2 balkony, terasou, zatepleným obytným podkrovím (nyní využívaný jako tělocvična) a velkorysými suterénními prostory. Nezbytnou samostatnou dílnou, technickým zázemím, kotelnou, samostatně vytápěnou místností vhodnou např. pro kancelář i praktický sklípek. Užitná plocha vč. příslušenství (garáž, sklepy, atd.) 400 m2. Čistá obytná plocha 196,05 m2, (plocha bez balkonů, chodeb, podest, schodišť, suterénu, dvojgaráže, terasy). Dále 2 balkony 17,5 m2, terasa 27,5 m2. Ochranné pásmo za pozemkem (40 m na každou stranu viz foto). Vytápění zajišťuje plynový kondenzační kotel Geminox THRs s ovládáním na dálku (nový z r. 2022) se zásobníkem na TUV o objemu 400 l a jako rezerva starší bojler. Měsíční náklady za ele a plyn jsou 8.940 Kč. Trojkomín pro kondenzační kotel a vnitřní a venkovní krb. Nová bazénová technologie včetně bazénové fólie (z r. 2024). Bazén se zastřešením je vytápěn prostřednictvím tepelného čerpadla. Dále nová instalace zahradního zavlažování s retenční nádrží na dešťovku o objemu 30 m3. Dům je napojen na obecní sítě a PCO. Přímý vstup do dvojgaráže, další 2 parkovací místa nabízí boční dřevěná pergola s pevnou zadní stěnou. Vzrostlá zeleň a pozemku zajišťuje dostatek soukromí. Milou atmosféru dotváří venkovní krb, maximum komfortu potom vyhřívaný bazén se zastřešením. Suchdol je svébytnou rezidenční čtvrtí Prahy 6 s ucelenou občanskou vybaveností. Bydlení zde je klidnou oázou mimo ruch města s hned za brankou a spoustou příležitostí k aktivnímu odpočinku. Pro více informací jsem vám k dispozici na kontaktech uvedených níže.


