Prodej - dům/vila, 210 m²
Prodej RD 6+2/G 210m² s pozemkem 370m²
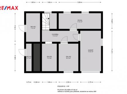
Exkluzivně nabízíme k prodeji samostatně stojící rodinný dům v žádané lokalitě Praha – Horní Počernice, ulice Češovská 1863. Cihlový dům o dispozici 6+2 s garáží nabízí komfortní rodinné bydlení s celkovou užitnou plochou 210 m². Zastavěná plocha činí 97 m² a k domu náleží udržovaný pozemek o výměře 370 m². Dům je dvoupodlažní, plně podsklepený a disponuje také prostornou půdou, která nabízí další potenciál využití. V suterénu se nachází sklepní prostory o ploše 52 m², vhodné jako technické zázemí, sklad či dílna, a dále garáž. Před garáží je k dispozici další parkovací stání. Vytápění je řešeno radiátory napojenými na elektrokotel, k dispozici je rovněž plynový kotel. Ohřev teplé vody zajišťuje elektrický bojler. Na střeše je instalována fotovoltaická elektrárna, která významně snižuje provozní náklady domácnosti. Dům je napojen na veškeré inženýrské sítě – vodovod, kanalizaci, plyn a elektřinu (230 V). Samozřejmostí je internetové připojení a telekomunikační služby. Lokalita nabízí výbornou dopravní dostupnost – v blízkosti se nachází vlakové spojení, zastávky MHD, rychlé napojení na dálnici i hlavní silniční tahy. Centrum Prahy je tak pohodlně dostupné autem i veřejnou dopravou. Nemovitost představuje ideální volbu pro vícečlennou rodinu i zajímavou investiční příležitost. Financování hypotečním úvěrem je samozřejmostí a s jeho vyřízením vám rádi bezplatně pomůžeme. Pro více informací nebo sjednání prohlídky zavolejte makléři nabídky. Prodávající si vyhrazuje právo vybrat kupujícího na základě jím zvolených kritérií.


