Prodej - dům/vila, 221 m²
Prodej řadového rodinného domu 221 m2 + pozemek 229 m2, Praha 4 Krč
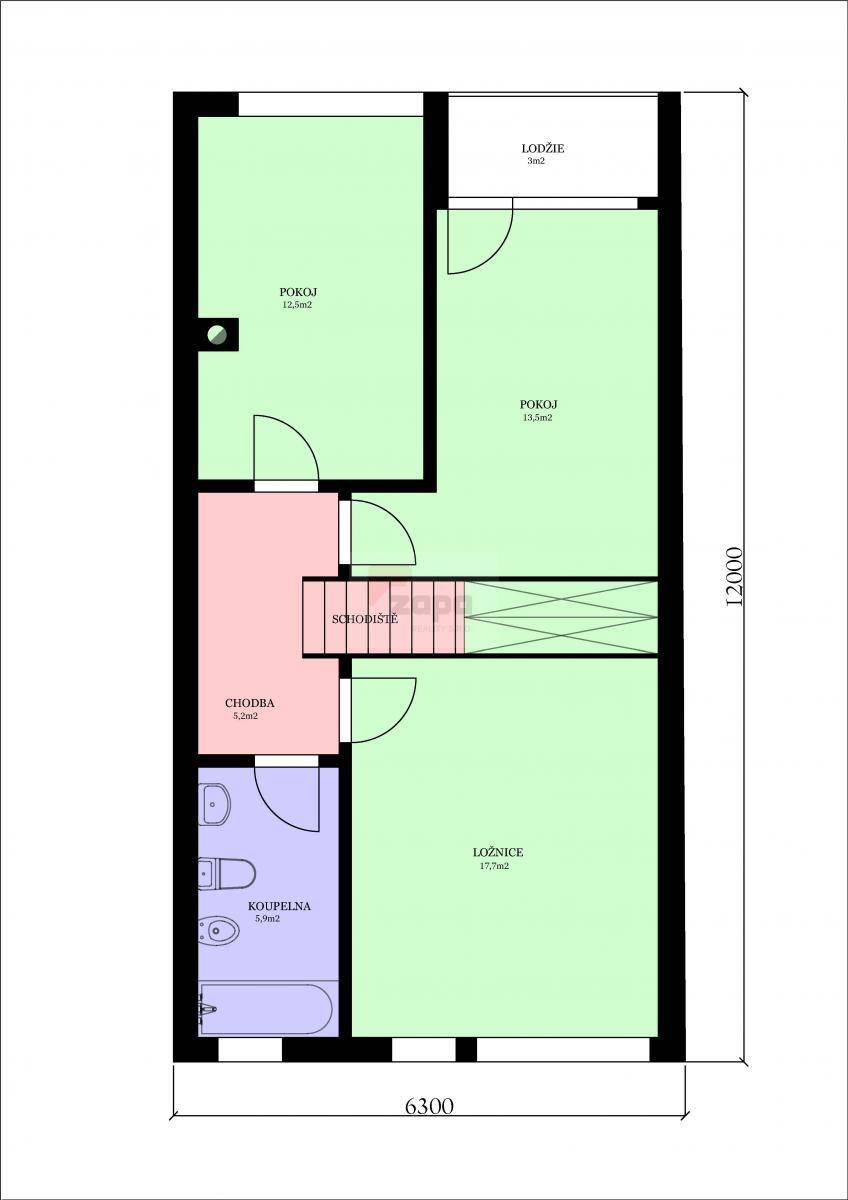
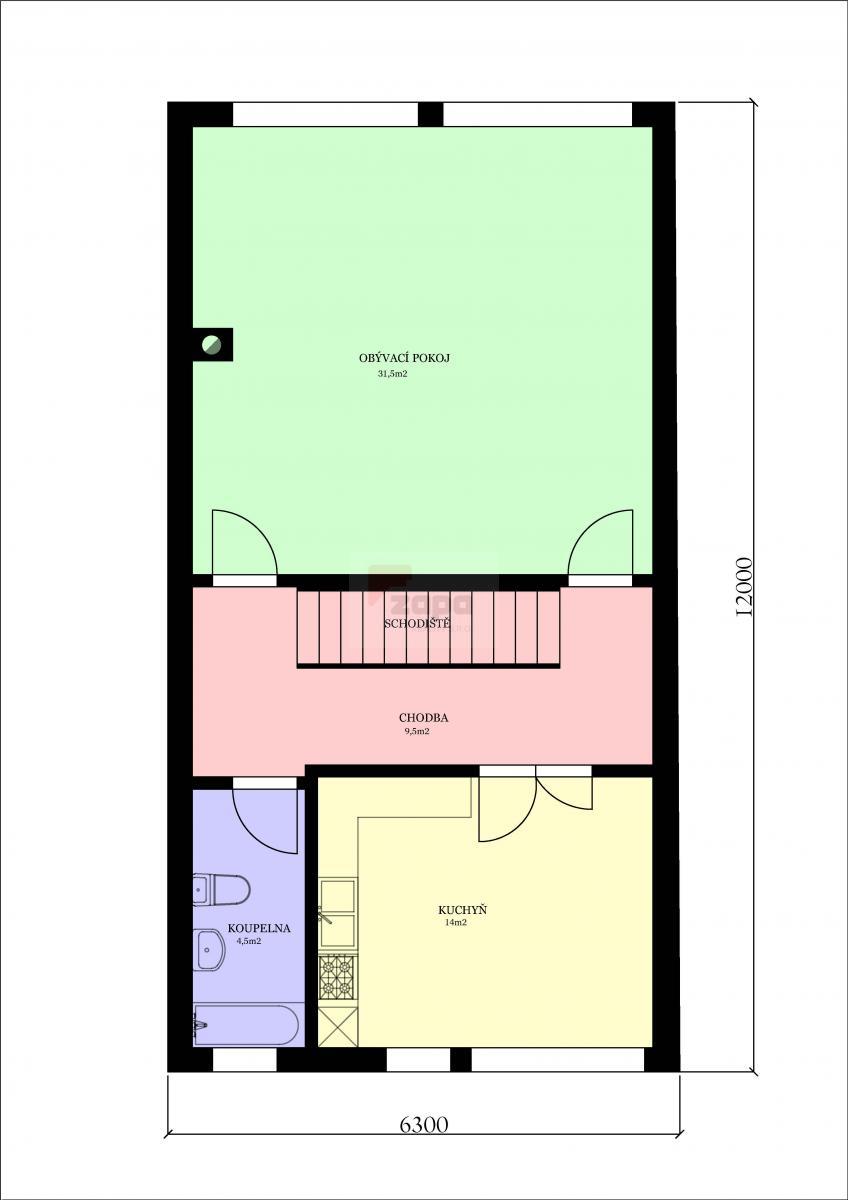
Exkluzivně nabízíme prodej dvougeneračního třípodlažního řadového rodinného domu Praha 4 Krč, ulice Perlitová. Podlahová plocha domu činí 221 m2, plocha rovinatého pozemku 229 m2. V prvním podlaží je k dispozici bytová jednotka 1+kk s terasou a vstupem na zahradu, garáž a technická místnost. Druhé a třetí podlaží tvoří bytová jednotka 4+1 se dvěma koupelnami a lodžií. Terasa a zahrada jsou orientovány na jihovýchod, do klidné zeleně, vstup do domu na severozápad. Dům, kolaudovaný v roce 1992, prošel částečnou rekonstrukcí - nové rozvody vody, nová eurookna. Topení a ohřev vody zajišťuje plynový etážový kotel. Třída energetické náročnosti budovy je C - úsporná. Ulice Perlitová je jednosměrná, velmi klidná. Nemovitost je v blízkosti metra Pankrác a Budějovická, těsně vedla sportovního areálu SK Oaza. V okolí je veškerá občanská vybavenost - školy, školka, poliklinika, obchody. Dům je možné využít jak k bydlení, tak i k podnikání. Prohlídky jsou možné ihned, cena je včetně provize. Koupi lze financovat prostřednictvím hypotečního úvěru, který Vám pomůžeme vyřídit.


