Prodej bytu, 4+1, 96 m²
Prodej prostorného dvougeneračního bytu 4+1, lodžie, 96,2 m² – ulice Gabinova, Praha 5 – Hlubočepy
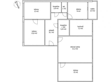
Nabízíme k prodeji světlý a prakticky řešený byt o dispozici 4+1 a celkové ploše 96,2 m² včetně lodžie (3,44 m²), nacházející se v 5. patře panelového domu v klidné části pražského Barrandova, v ulici Gabinova. Součástí bytu je rovněž sklepní kóje o výměře 2,57 m². Byt je ideálně vhodný pro dvougenerační bydlení díky dvěma koupelnám, dvěma toaletám a dvěma kuchyním. Jednotka prošla částečnou rekonstrukcí. Kuchyňská linka je vybavena moderními vestavěnými spotřebiči – indukční varnou deskou a troubou značky Bosch, myčkou Mora a nerezovým dřezem. V předsíni se nachází dvě prostorné vestavěné skříně, v jedné z ložnic je nová šatní skříň přes celou stěnu. Toaleta je osazena závěsným systémem Geberit. Na podlahách je položeno lino. Byt disponuje zděným jádrem s elektrickými rozvody v mědi, obvodové stěny mají rozvody elektřiny původní. Díky vyššímu podlaží nabízí byt krásný výhled do zeleně, a to jak z obývacího pokoje, tak z ložnice. Velká plastová okna jsou osazena izolačními dvojskly, která zajišťují komfortní tepelně i akusticky izolační vlastnosti a poskytují dostatek denního světla. Fond oprav činí 3.337.- Kč. Dům je velmi dobře udržovaný – prošel rekonstrukcí stoupacích vedení, má nový výtah, zrekonstruovaný vstupní prostor a vyměněná okna ve společných částech. Lokalita nabízí kompletní občanskou vybavenost: v pěší vzdálenosti se nachází základní i mateřská škola, Aquacentrum, obchody Billa a Albert, pošta, lékárna i další služby. Milovníci přírody ocení blízkost Prokopského údolí s možností volnočasových a sportovních aktivit. Výborné dopravní spojení zajišťuje tramvajová zastávka Chaplinovo náměstí (linky 4, 5, 12, 20 a noční linka 94), která umožňuje pohodlné spojení s centrem Prahy. Byt představuje zajímavou příležitost pro vícečlennou rodinu či dvougenerační bydlení v klidné, zelené a výborně dostupné části hlavního města.

