Prodej bytu, 2+kk, 71 m²
Prodej prostorného bytu 2kk P2 Vinohrady
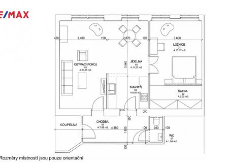
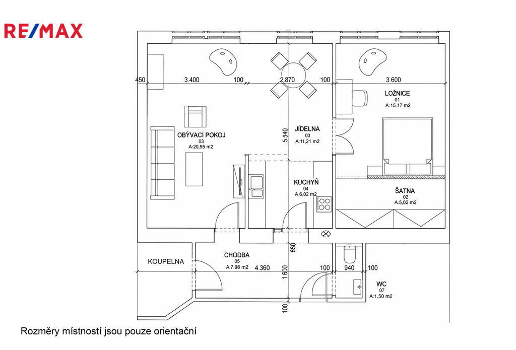
V srdci pražských Vinohrad, vedle Vinohradského divadla a v docházkové vzdálenosti od Riegrových sadů i samotného centra města, nabízím ke koupi prostorný světlý byt o dispozici 2+kk. Nemovitost se nachází ve 4. nadzemním podlaží udržovaného činžovního domu s výtahem. Celková plocha bytu včetně příslušenství činí 71,6 m². Dispozice je velmi dobře navržená a působí vzdušným, příjemným dojmem. Dominantou bytu je obytný prostor s kuchyňským koutem o velikosti 14,9 m², který přirozeně navazuje na hlavní obytnou část o ploše 22,0 m². Druhý pokoj o výměře 21,2 m² slouží jako ložnice a jeho součástí je samostatný šatník, jenž výrazně zvyšuje komfort bydlení a nabízí dostatek úložného prostoru bez nutnosti dalšího úložného nábytku v interiéru. Koupelna se sprchovým koutem má výměru 3,9 m², toaleta je řešena samostatně a disponuje plochou 1,4 m². Prostorná předsíň o velikosti 8,2 m² poskytuje dostatek místa pro vestavěné úložné řešení. Byt prošel rekonstrukcí přibližně před 15 lety, včetně rozvodů elektřiny, vody a plynu. Vytápění i ohřev vody zajišťuje vlastní plynový kotel, což přináší nezávislost na centrálních dodávkách a zároveň umožňuje efektivní kontrolu provozních nákladů. Součástí vlastnictví je spoluvlastnický podíl na společných částech domu a pozemku o velikosti 716/13530. K bytu náleží rovněž podíl na nebytovém prostoru – kosmetickém salonu v suterénu domu o celkové ploše 205,4 m², což představuje zajímavý prvek z pohledu dlouhodobé hodnoty nemovitosti. Lokalita samotná patří k absolutní pražské špičce. Riegrovy sady jsou vzdálené jen několik minut chůze, v okolí je široká nabídka kaváren, restaurací, obchodů i služeb. Výborná je rovněž dopravní dostupnost – tramvajové zastávky i stanice metra jsou v pěší vzdálenosti a do centra Prahy se dostanete během několika minut. Výhodná je také blízkost Hlavního vlakového nádraží. Byt je vhodný jak pro vlastní bydlení, tak i jako investiční příležitost k pronájmu. Kombinace atraktivní adresy, nadstandardní výměry, praktického šatníku, nového výtahu a jasně definovaných vlastnických vztahů z něj činí velmi zajímavou nabídku. Nemovitost je možné hradit hypotéčním úvěrem, s jehož zajištěním Vám rádi pomůžou naši hypotéční specialisté. Pokud vás tato nemovitost zaujala, ozvěte se mi a rád vás bytem osobně provedu.


