Prodej - pozemek pro bydlení, 488 m²
Prodej pozemek Bydlení, 488㎡
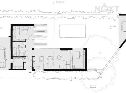
Prodej lukrativního stavebního pozemku o celkové výměře 488 m2, Praha 11 - Háje. Tato rohová parcela je v platném územním plánu vedená jako zastavitelná pro bydlení a nachází se v městské části Prahy 11 - Háje. Pozemek je rovinatý s kompletními inženýrskými sítěmi (vodovod, kanalizace, elektřina), což z něj činí ideální místo pro stavbu rodinného domu dle Vašich představ. Územní plán umožňuje výstavbu například domu s moderním vzhledem a rovnou střechou. Součástí prodeje pozemku jsou vypracované studie dvou typů domu, samozřejmostí je možnost navrhnout si stavbu dle svých preferencí. Na pozemku se nacházejí vzrostlé stromy, které dodávají místu přírodní charakter a mohou být elegantní součástí budoucí zahradní kompozice. Hledáte-li kompaktní pozemek pro Vaše nové rodinné bydlení, pro více informací volejte makléře. Pro komunikaci uvádějte evidenční číslo zakázky N112531.


