Prodej - obchodní prostor, 86 m²
Prodej obchodního prostoru 91,3 m² – Praha 6, Dejvice, s parkovacím stáním
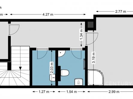
Exkluzivně nabízíme moderní klimatizovaný nebytový prostor o velikosti 91,3 m² v novostavbě z roku 2008, jen pár minut od metra A – Dejvická. Vhodné pro kanceláře, služby, ordinace, showroom i menší gastro provoz. Hlavní přednosti: • 3 samostatné místnosti/kanceláře, 2 koupelny, 3 WC, 3 sprchy. • Vstup přímo z ulice Kolejní. • Klimatizace, elektrický kotel na vytápění, bojler na teplou vodu. • 1 kryté parkovací stání + možnost parkování před objektem. • Skvělá dopravní dostupnost a kompletní občanská vybavenost v okolí. • Prostor je kolaudován jako masážní salon. • Virtuální prohlídka Matterport k dispozici. Proč tento prostor: ✔ variabilní využití pro různé typy podnikání. ✔ možnost pronájmu jednotlivých místností – investiční potenciál. ✔ atraktivní lokalita Prahy 6 – stabilní poptávka po komerčních prostorách. Cena je včetně DPH i provize (právní servis, úschova, katastr). Pro více informací nebo domluvení prohlídky kontaktujte makléře.


