Prodej - obchodní prostor, 210 m²
Prodej obchodních prostor 210 m²
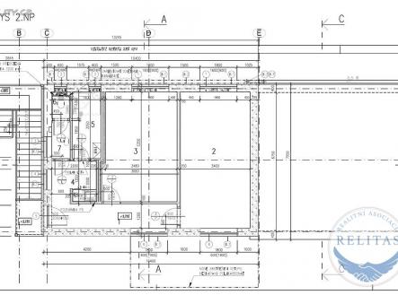
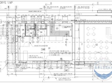
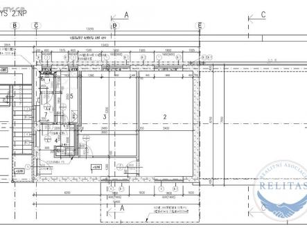
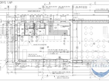
Prodej čerpací stanice s bistrem a kancelářemi v Praze Hostivaři, ulice Opravářská, po kompletní rekonstrukci, nejmodernější vybavení, Tank automat zajišťující non-stop provoz, akceptace karet DKV, CCS, UTA, EW, Master card, Visa plus vlastní staniční karty. Čerpací stanice umístěná v těsné blízkosti hlavního tahu na trase Jižní spojka - Průmyslová, samostatný vjezd. Velikost nádrží: nadzemní jednokomorová na naftu o objemu 60.000 litrů, podzemní tříkomorová na benzín 30.000 litrů, AdBlue 5.000 litrů, Úkapy 5.000 litrů. Stanice se prodává včetně zavedeného personálu a zaškolení nového majitele, což představuje ideální příležitost pro okamžité pokračování v provozu bez nutnosti dalších investic do rozjezdu. Přízemí: prodejna a bistro (teplá jídla, nápoje, Costa coffee) s venkovní zahrádkou, sklad 1. patro: dvě moderní kanceláře včetně sociálního zařízení a sprchy. Infrastruktura: Vodovod, elektřina (230V, 380V, 3 fáze), tepelné čerpadlo pro vytápění, klimatizace Optický internet s rychlostí 25 Mbit/s Veřejná kanalizace, asfaltová komunikace s výbornou dostupností (vlak, MHD, silnice, autobus) Parkování: K dispozici 16 parkovacích míst. Celková plocha: 1 868 m², z toho užitná plocha 210 m² a zastavěná plocha 155 m², zeleň v areálu: rozloha 400 m² Bezpečnostní vybavení: Stanice splňuje veškeré moderní standardy pro bezpečnost a efektivitu provozu. Zaškolení: Možnost přenechat zavedený personál a zaškolit nového majitele. Lokalita: Rušná část obce, průmyslová zóna s výbornou dopravní dostupností, v blízkosti Toptrans, u hlavního tahu Jižní spojka - Průmyslová, cca 300 m od lanového mostu Stavba: Cihlová novostavba, kolaudace v roce 2024, rekonstrukce proběhla v roce 2023, velmi úsporná energetická náročnost. Tato investice je ideální pro investory, kteří hledají stabilní a ziskový projekt s možností okamžitého provozu.


