Prodej - dům/vila, 180 m²
Prodej novostavby 4+kk, 180 m2, Praha 9 - Jahodnice, 2x garáž, terasa, balkon, zahrada
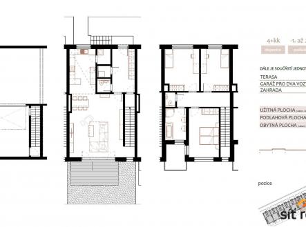
Rádi bychom Vám exklusivně nabídli prodej atraktivního řadového rodinného domu na Praze 9 - Jahodnici, který je vyčlenen jako soliterní mezonetová jednotka v rámci nového rezidenčního developerského projektu s názvem U Parku Jahodnice, který, jak napovídá název projekt, bude přímo orientován s jižním otevřeným výhledem na nově budovaný park Jahodnice. Nemovitost o dispozici 4+kk, o dvou nadzemních podlažích a jednom podlaží podzemním, o celkové ploše 180 m2, nabízí velmi praktické vnitřní uspořádání. Součástí je i vlastní dvougaráž, sklepní komora, předzahrádka o rozloze 32 m2, z toho jedna s dřevěnou terasou, prostorný balkon ve 2.NP a sklepní úložné prostory. Nejvyšší nároky na moderní bydlení zaručuje nízká energetická náročnost nemovitosti třídy B. Vytápění mezonetu je zajištěno tepelným čerpadlem, ve standardu je taktéž teplovodní podlahové vytápění, které je rozvedeno v celém domě, ve 2.NP kvalitní okna s izolačním trojsklem. Součástí vysokého standardu vybavení je mimojiné také klimatizace (ve 2.NP), kvalitní vinylové podlahy, moderní dekory obkladů a dlažby a značková sanita, nechybí ani příprava na venkovní žaluzie. Praha 9 - Jahodnice je velmi dynamicky se rozvíjející pražskou čtvrtí, kde naleznete harmonické propojení kvalitního bydlení s perfektní dopravní dostupností a kompletní občanskou vybaveností, v těsné blízkosti školy a školky a zároveň obklopené přírodou. A to vše za cenu standardního bytu v Praze - doporučujeme! Dokončení 12/2026, nyní za zaváděcí ceny. V případě potřeby financování prostřednictvím jiné nemovitosti Vám zajistíme prodej za zvýhodněných podmínek a zároveň smluvně zkoordinujeme financováni daného domu s developerem. Dům je možné financovat hypotékou, kterou Vám kompletně zajistíme dle Vašich požadavků a navíc získáte speciální podmínky i sazby u bank, které za Vás aktuálně vždy porovnáme. Ev. č. 2510200022


