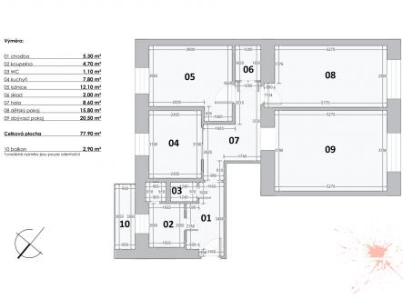
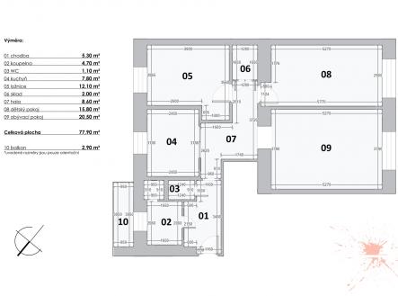
Prodej bytu, 3+1, 81 m²
Prodej moderního bytu 3+1 s balkonem, 78 m², Praha - Libeň
V Lihovarské ulici v pražské Libni se nachází velmi příjemný třípokojový byt s kuchyní, který už na první pohled působí jako místo, kde se dá pohodlně žít. Majitelé jej nechali citlivě a kompletně zrekonstruovat podle návrhu architektky, která z něho vytvořila harmonický domov. Interiér působí svěže a útulně díky dřevěným podlahám z běleného dubu, které dodávají prostoru lehkost a nadčasovost. Kuchyně pochází od výrobce, pro kterého je kuchyně skutečným srdcem každého domova, a je navržena tak, aby přinášela radost z vaření i společných chvil. Vestavěné skříně na míru nabízejí úložné prostory, které dokonale respektují dispozici bytu a budí příjemný pocit pořádku a elegance. Koupelna je vybavena kvalitní sanitou od uznávaného německého výrobce a v bytě nechybí ani moderní radiátory s termostaty, díky nimž lze snadno navodit příjemné klima. V každém pokoji je navíc připraven ethernetový přístup, což přináší velký komfort pro práci z domova a spolehlivé připojení pro chytrou televizi nebo herní konzoli. Díky tomu může mít každý člen domácnosti klidné místo se stabilním internetem. Soukromí a bezpečí zaručují české interiérové dveře a bezpečnostní vstupní dveře. Okna s trojitým zasklením pak přispívají k příjemné atmosféře i klidnému bydlení. Lokalita patří mezi velmi oblíbené. Do centra města je to zhruba čtvrt hodiny a jen několik kroků od domu se nachází tramvajová zastávka. Příjemnou procházkou je možné dojít k metru linky B a kousek odtud je také vlaková stanice Libeň. Pro běžné denní potřeby i volný čas je oblast jako stvořená – nedaleko se nachází obchodní centrum Galerie Harfa, poliklinika, dětský klub, mateřská i základní škola. Milovníci aktivního života ocení blízkost multifunkčního sportovního centra UNYP Arena a sportovního areálu TJ Praga. Pro chvíle odpočinku je ideální Park Rokytka nebo oblíbená bobová dráha, které dodávají okolí příjemnou energii i široké možnosti jak trávit volný čas. Byt tedy nabízí nejen kvalitně zpracovaný interiér, ale také velmi atraktivní místo k životu s mimořádně pohodlnou dostupností všeho, co je pro každodenní spokojenost důležité. Pokud hledáte domov, který kombinuje promyšlený design, pohodovou atmosféru a skvělou polohu, je toto místo ideální volbou. Těším se na setkání s Vámi při prohlídce tohoto jedinečného bytu.


