Prodej - malý objekt/garáž
Prodej luxusního mobilního domu 32 m² – ideální pro glamping / investici / rekreaci / bydlení
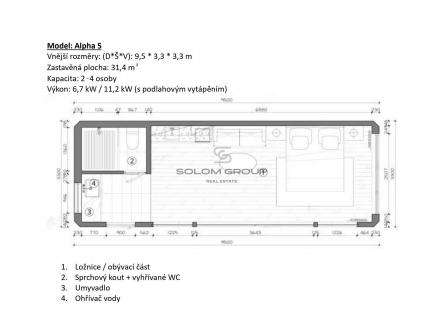
Prodej 2× luxusní mobilní dům (mobilheim) Nabízíme k prodeji dva moderní prémiové mobilní domy (mobilheimy), 32 m², ve stejném stylu, vhodné pro bydlení, glamping, pronájem, rekreační bydlení nebo investiční projekt. Domy jsou komfortně vybavené a navržené pro celoroční využití – stačí připravit místo, napojení a můžete fungovat. Oba mobilheimy mají panoramatickou střechu (pro maximální světlo a „wow efekt“), podlahové vytápění, klimatizaci, elektrické závěsy a moderní ovládání prvků domu. Vstup je řešený otevíráním zámku na kód nebo kartu. U jednoho domu je navíc u vybraného okna místo závěsu instalované projekční plátno – ideální na večerní promítání. Součástí je kompletní zázemí: ložnice, koupelna se sprchou a WC, obytný prostor, připravené rozvody a elektroinstalace. Jeden z domů má navíc balkon, který výrazně zvyšuje atraktivitu pro pronájem. Základní parametry 2× mobilní dům, kapacita celkem dle typu (1 dům pro 2–4 osoby, 1 dům pro 2 osoby) Rozměry cca 9–9,5 m délka × 3,3 m šířka, plocha cca 30–32 m² / kus Hmotnost cca 7–8 tun / kus Balkon u jednoho z domů Panoramatická střecha Podlahové vytápění Klimatizace Vařívané WC Elektrické závěsy Vstupní zámek na kód nebo kartu U jednoho domu projekční plátno místo závěsu u okna Kompletní elektro 220 V + proudový chránič Připravené rozvody vody a odpadu, koupelna (sprcha, WC, umyvadlo) * přeprava na standardním návěsu (šířka ≥ 3 m) instalace pomocí jeřábu (doporučeno ≥ 25 t) * připraveno na napojení vody/kanalizace/elektřiny * nabízíme možnost pomoci s logistikou a instalací dle domluvy Cena je uvedena za kus. Zvýhodněná cena při koupi obou domů. Záruka 2 roky na konstrukce a 1 rok na elektrospotřebiče.


