Prodej bytu, atypický, 181 m²
Prodej Luxusního loftového bytu 6+KK s předzahrádkou, 215 m², Praha
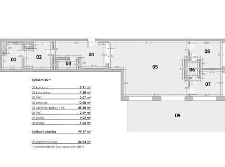
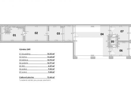
Představujeme Vám jedinečnou příležitost k pořízení prestižního velkometrážního bytu ateliérového typu, který se nachází v atraktivním projektu Lofty Kolbenova. Tento exkluzivní byt s rozlohou nabízí nejen luxusní prostor, ale také předzahrádku o velikosti 34 m², ideální pro relaxaci a soukromí. Klíčové vlastnosti tohoto bytu: Luxusní ateliérový byt v moderním a stylovém designu Rozsáhlý obytný prostor pro maximální komfort a variabilitu využití Předzahrádka 34 m² – dokonalé místo pro odpočinek nebo venkovní aktivity Exkluzivní lokalita v Praze – dynamicky se rozvíjející oblast s veškerou občanskou vybaveností a výbornou dopravní dostupností Vybavení a standardy: Rekuperace – zajišťuje čerstvý a zdravý vzduch po celý rok Klimatizace – pro příjemné klima ve všech ročních obdobích Podlahové topení – maximální komfort a efektivní vytápění Předokenní žaluzie – pro dokonalé stínění a soukromí Industriální styl celého projektu kombinuje přiznaný beton a původní konstrukci, celý dojem podtrhují velkoplošná hliníková okna. Lokalita: Projekt Lofty Kolbenova je situován v jedné z nejvíce rostoucích a perspektivních lokalit v Praze. Nabízí rychlou dostupnost do centra města, bohatou infrastrukturu a pestré možnosti pro volnočasové aktivity. Tramvajovou zastávku a metro máte přímo před domem (metro B Kolbenova). Pro milovníky umění nesmíme opomenout Prágovku přímo naproti domu. Skoro za rohem se nacházejí obchodní centra jako Fénix a Galerie Harfa. Pro fanoušky sportovních zápasů a velkých koncertů ideální bydlení v blízkosti O2 arény a zároveň v blízkosti přírody jako Klíčovské sady. Za 10 minut se tak můžete ocitnout jak v centru Prahy, tak na D10 nebo D11 při cestě do Krkonoš, Jizerských nebo Orlických hor, popřípadě na D8 do Krušných hor. Potenciál lokality dělá z bytu skvělou investiční příležitost. Investujte do luxusu, pohodlí a prestiže s Lofty Kolbenova. Jedná se o již hotový byt k nastěhování. Pro víc informací o objektu a jiných dispozic bytů/ateliérů mě prosím kontaktujte.


