Prodej bytu, atypický, 181 m²
Prodej Luxusního loftového bytu 6+KK s předzahrádkou, 215 m², Praha
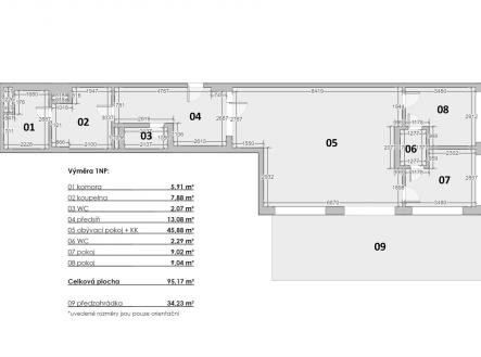
Prodej byt 6+kk, Praha 9 – Vysočany | designové bydlení v projektu Lofty Kolbenova Nabízíme k prodeji exkluzivní loftový byt o dispozici 6+kk v projektu Lofty Kolbenova, Praha 9 – Vysočany. Byt se nachází v 1. nadzemním podlaží a disponuje podlahovou plochou 215,63 m². Základní parametry ✓ dispozice: 6+kk ✓ podlahová plocha: 215,63 m² ✓ podlaží: 1. NP ✓ parkování: možnost dokoupení ✓ sklep: možnost dokoupení ✓ energetická náročnost: B – velmi úsporná Stav nemovitosti Jedná se o byt v kompletně zrekonstruovaném industriálním objektu, který byl citlivě přeměněn na moderní rezidenční projekt Lofty Kolbenova. Byly zde zachovány typické prvky jako vysoké stropy, betonové konstrukce a velkoformátová tovární okna. Tento developerský projekt získal ocenění jako uznání za nejlepší stavbu využívající stávající objekt v bývalé průmyslové lokalitě. Dispozice V přízemí se nachází prostorná vstupní chodba, samostatná toaleta, koupelna s vanou i sprchovým koutem a technická místnost. Dominantou podlaží je velkorysý otevřený prostor připravený pro kuchyňskou linku s jídelní a obývací částí. Dále jsou zde dva samostatné pokoje vhodné jako ložnice, pracovna nebo dětské pokoje. Ve druhém podlaží se nachází další dva samostatné pokoje, hlavní ložnice, šatna a koupelna vybavená vanou, sprchovým koutem a toaletou. Příslušenství Standard zahrnuje moderní technologie, jako je klimatizace, podlahové vytápění a rekuperací, která zajišťuje stabilní a zdravé vnitřní klima. Samozřejmostí jsou také předokenní žaluzie pro regulaci světla a teploty. Interiér kombinuje industriální prvky s kvalitními materiály – dřevěné podlahy v dekoru dubu, designové schodiště, osvětlení v industriálním stylu, stěna z pohledového betonu, ocelové detaily a přiznané betonové konstrukce. Pokoje jsou oddělené designovými skleněnými příčkami. K bytu je možné dokoupit parkovací stání a sklep. Byt je vhodný jak pro rodinné bydlení, tak i pro klienty hledající prostor s charakterem a originalitou. Lokalita Projekt Lofty Kolbenova se nachází v rychle se rozvíjející části Prahy 9 – Vysočany, která postupně mění svůj původní industriální charakter na moderní městskou čtvrť. Lokalita nabízí kombinaci nové rezidenční výstavby, služeb a autentické atmosféry bývalých průmyslových areálů. Skvělou dopravní dostupnost zajišťuje metro B Kolbenova (cca 4 minuty chůze) a tramvajová zastávka vzdálená jen 2 minuty. Do centra města se dostanete přibližně za 15 minut. V okolí najdete kompletní občanskou vybavenost – obchody, restaurace, kavárny i sportovní zařízení. V blízkosti se nachází také oblíbená lokalita Pragovka s kulturním a komunitním přesahem. Pro volný čas lze využít parky Podviní a Zahrádky nebo cyklostezku podél Rokytky. Lokalita tak nabízí vyvážené spojení městského života a zeleně.


