Prodej - kanceláře, 181 m²
Prodej Luxusního loftového ateliéru 6+KK s předzahrádkou, 215 m², Praha
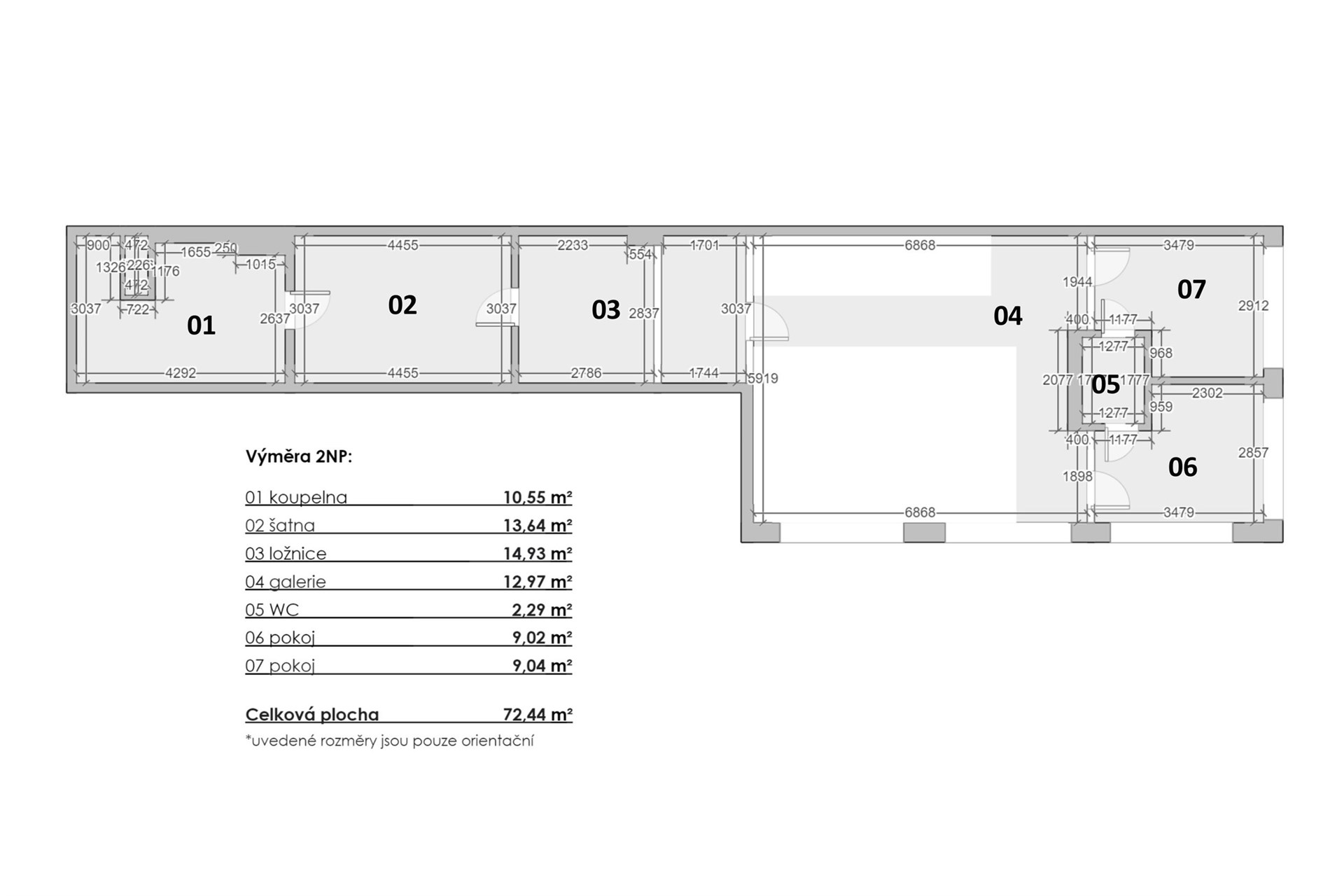
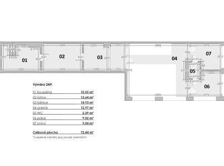
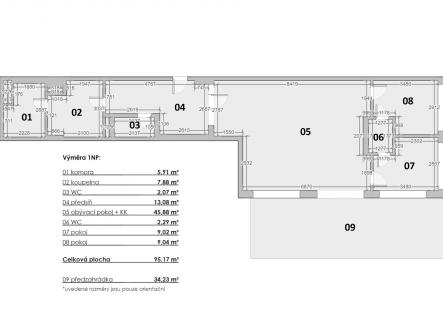
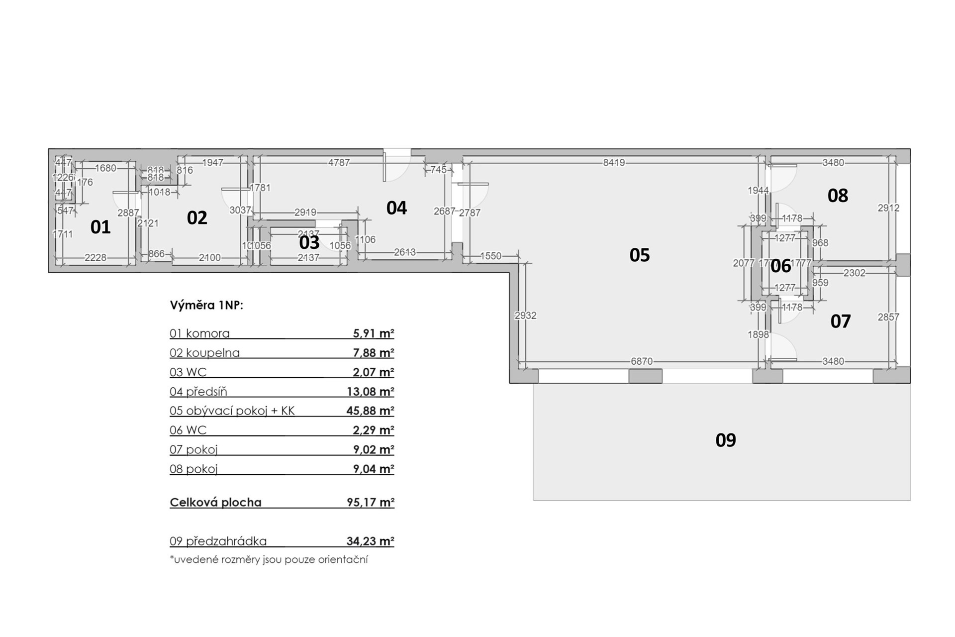
Prodej ateliéru 6+kk, Praha 9 – Kolbenova | Industriální ateliér pro podnikání Nabízíme k prodeji exkluzivní loftový prostor o dispozici 6+kk v projektu Lofty Kolbenova, Praha 9 – Vysočany. Byt se nachází v 1. nadzemním podlaží a disponuje podlahovou plochou 215,63 m². Díky svému industriálnímu charakteru je ideální pro využití jako reprezentativní kancelář, showroom nebo kreativní studio. Základní parametry ✓ dispozice: 6+kk ✓ podlahová plocha: 215,63 m² ✓ podlaží: 1. NP ✓ parkování: možnost dokoupení ✓ sklep: možnost dokoupení ✓ energetická náročnost: B – velmi úsporná Stav nemovitosti Jednotka se nachází v kompletně zrekonstruovaném industriálním objektu, který byl citlivě přeměněn na moderní rezidenční projekt Lofty Kolbenova. Byly zde zachovány typické prvky jako vysoké stropy, betonové konstrukce a velkoformátová tovární okna. Tento developerský projekt získal ocenění jako uznání za nejlepší stavbu využívající stávající objekt v bývalé průmyslové lokalitě. Dispozice V přízemí se nachází prostorná vstupní část vhodná pro recepci, samostatná toaleta, koupelna se sprchou i vanou a technická místnost. Dominantou je velkorysý otevřený prostor ideální pro open space kancelář nebo showroom. Dále jsou zde dvě samostatné místnosti využitelné jako kanceláře či zasedací místnosti. Ve druhém podlaží jsou další tři samostatné místnosti, které lze využít jako kanceláře vedení, jednací prostory nebo klidové pracovní zóny, dále šatna a koupelna se sprchou, vanou a toaletou. Příslušenství Standard zahrnuje moderní technologie, jako je klimatizace, podlahové vytápění a rekuperací, která zajišťuje stabilní a zdravé vnitřní klima. Samozřejmostí jsou také předokenní žaluzie pro regulaci světla a teploty. Interiér kombinuje industriální prvky s kvalitními materiály – dřevěné podlahy v dekoru dubu, designové schodiště, osvětlení v industriálním stylu, stěna z pohledového betonu, ocelové detaily a přiznané betonové konstrukce. Pokoje jsou oddělené designovými skleněnými příčkami. K ateliéru je možné dokoupit parkovací stání a sklep. Prostor je vhodný pro firmy, kreativní studia i klienty hledající výrazné a atypické zázemí pro podnikání. Lokalita Projekt Lofty Kolbenova se nachází v rychle se rozvíjející části Prahy 9 – Vysočany, která postupně mění svůj původní industriální charakter na moderní městskou čtvrť. Lokalita nabízí kombinaci nové rezidenční výstavby, služeb a autentické atmosféry bývalých průmyslových areálů. Skvělou dopravní dostupnost zajišťuje metro B Kolbenova (cca 4 minuty chůze) a tramvajová zastávka vzdálená jen 2 minuty. Do centra města se dostanete přibližně za 15 minut. V okolí najdete kompletní občanskou vybavenost – obchody, restaurace, kavárny i sportovní zařízení. V blízkosti se nachází také oblíbená lokalita Pragovka s kulturním a komunitním přesahem. Pro volný čas lze využít parky Podviní a Zahrádky nebo cyklostezku podél Rokytky. Lokalita tak nabízí vyvážené spojení městského života a zeleně.


