Prodej bytu, 3+kk, 137 m²
Prodej luxusního bytu 3+kk 137m2 + terasa 13m2 + sklep
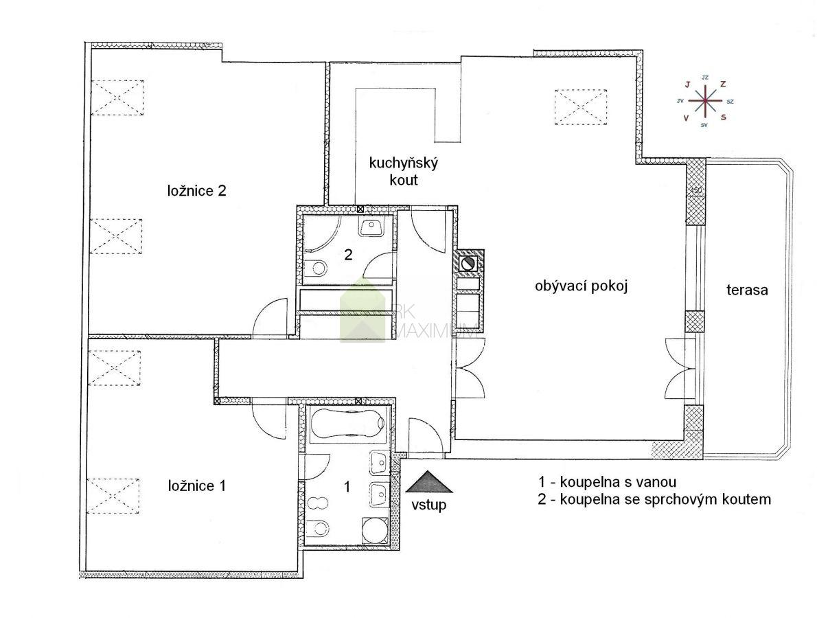
Exkluzívně nabízíme k prodeji krásný světlý byt s velkou SZ orientovanou terasou a nádherným výhledem na Prahu. Poslední 6. NP cihlového výborně udržovaného činžovního domu s výtahem na prestižní adrese v Praze 4 - Podolí. Byt o dispozici 3+kk (s možností změny na 4+kk), plocha bytu 137 m2 + terasa 13m2 + sklep) , rok výstavby 2003, výborný technický stav. K dispozici jsou prostorný obývací pokoj s kuchyňským a jídelním koutem, dvě velké ložnice s vestavěnými skříněmi, jedna koupelna se 2 umyvadly, vanou, bidetem a toaletou, druhá koupelna se sprchovým koutem a toaletou a předsíň s vestavěnými skříněmi. V obývacím pokoji je klimatizační jednotka. Přesnější dispozici bytu vidíte na plánku. Terasa byla nově obložena v r. 2025, sklep je zděný, velký a velmi dobře zabezpečený. Bezproblémové parkování v blízkém okolí, modrá zóna. Výborná dopravní dostupnost do centra tramvají, příp. 5 min busem na metro C. V místě je veškerá občanská vybavenost, v těsné blízkosti vltavské nábřeží s cyklostezkou, hřišti, loděnicí, plaveckým stadionem a dalšími možnostmi sportovního vyžití. Velice příjemné bydlení jak pro pár, tak pro rodinu s dětmi. Makléřka telefonicky sdělí doplňující informace. Prohlídky možné od 1.3.2026, nastěhování po 1.6.2026.


