Prodej bytu, 3+kk, 73 m²
Prodej krásného bytu 3kk, s balkonem, sklepem a parkovacím stáním 73 m², Praha Kbely
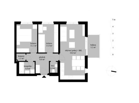
Nabízíme k prodeji moderní byt 3+kk v novostavbě, který se nachází ve 3. nadzemním podlaží bytového domu v klidné a příjemné lokalitě pražských Kbel. Byt je ve velmi dobrém stavu, kompletně vybavený a připravený k okamžitému užívání. V současnosti je pronajatý spolehlivým nájemníkům, kteří mají zájem v bytě zůstat i nadále, což z něj činí ideální příležitost pro investory hledající stabilní výnos. Dispozice bytu je navržena s důrazem na komfort a moderní životní styl. Součástí je plně vybavená kuchyňská linka se všemi spotřebiči včetně pračky, obývací pokoj s přímým vstupem na prostorný balkon, který nabízí klidné zázemí pro relaxaci a odpočinek. K bytu dále náleží sklepní kóje a vlastní parkovací stání v suterénu domu, což zajišťuje praktické parkování i dostatek úložného prostoru. Lokalita Kbel nabízí perfektní kombinaci městské vybavenosti a klidného prostředí obklopeného zelení. Přímo u domu se nachází mateřská školka, což je výhodou zejména pro rodiny s malými dětmi. V docházkové vzdálenosti jsou dostupné obchody, restaurace, služby i sportovní a volnočasová infrastruktura. Nedaleký Centrální park Kbely, cyklostezky a další přírodní plochy umožňují kvalitní trávení volného času. Dopravní spojení do centra Prahy je velmi pohodlné – v blízkosti domu se nachází autobusová zastávka Valcha, odkud se během šesti minut dostanete na stanici metra linky C – Letňany. Díky výborné dostupnosti k městskému okruhu a hlavním výpadovkám je lokalita atraktivní nejen pro každodenní dojíždění, ale i jako dlouhodobá investice. Tento byt je skvělou volbou jak pro vlastní bydlení, tak pro investiční účely s již zavedeným nájemním vztahem. Pokud hledáte nemovitost v lokalitě s výbornou občanskou vybaveností, klidným prostředím a zároveň v dosahu centra města, neváhejte nás kontaktovat. V rámci kompletního realitního servisu je pro Vás připraveno financování ve Vámi vybrané bance. Těším se na společné setkání při prohlídce tohoto bytu.


