Prodej bytu, 3+kk, 81 m²
Prodej krásného bytu 3kk po rekonstrukci s nadstandardní lodžíí
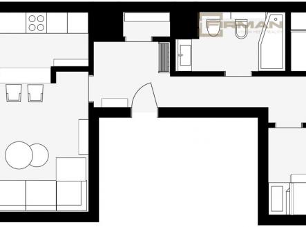
Hledáte domov, kde se snoubí funkčnost, moderní design a klidná lokalita s výbornou dostupností? Tento byt 3kk je přesně tím, co splní i ty nejnáročnější požadavky na bydlení. Celková plocha bytu činí skvělých 84m² (užitná plocha 77m², lodžie 7m², sklep 4m²). A co víc.. plocha všech lodžie byla při rekonstrukci zvětšena oproti standardu, díky čemuž vznikl skutečně velkolepý prostor, který si zamilujete na první pohled. Byt prošel kompletní rekonstrukcí, která přinesla maximální využití prostoru a komfort pro každodenní život. Zvětšená koupelna nyní nabízí ideální místo pro relaxaci – je vybavena vanou, wc, i bidetem což je luxus, který ocení každý člen rodiny. Úložné prostory byly vytvořeny s ohledem na praktické využití, takže v bytě najdete dostatek místa na všechny své věci, aniž byste museli obětovat pocit vzdušnosti a prostoru. Obývací pokoj spojený s kuchyní nabízí dostatek prostoru pro celou rodinu a dva další samostatné pokoje naopak dostatek prostoru pro každého člena rodiny. Celý prostor je skvěle dispozičně řešen. Na jedné straně se nachází obývací pokoj s kuchyní ze kterého je vstup na lodžii. Na straně druhé pak nalezneme dva prostorné pokoje, které jsou nyní využívány jako ložnice a dětský pokoj. Velkým bonusem je zmíněná velkolepá lodžie, která poskytuje dostatek prostoru pro posezení a vytvoření útulného koutku k relaxaci. Lodžie je zasklená, takže získáváte skvělý prostor pro letní i zimní měsíce. Díky orientaci oken na dvě světové strany do ulice i do klidného parku mezi domy, je byt světlý a nabízí příjemný výhled, který vás potěší každý den. Celý dům prošel rozsáhlou a nákladnou revitalizací. Zásadní investice do obnovy domu přispívají k celkovému komfortu bydlení. Vzhledem k těmto nákladným opravám a revitalizaci celého domu jsou o něco vyšší pravidelné měsíční platby, kdy lze ale čekat snížení nákladů vzhledem ke snížení energetické náročnosti celé budovy na třídu B!!! Ze stávajících plateb je navíc pravidelně vraceno kolem 20.000Kč v rámci vyúčtování. Byt se nachází v klidné části sídliště, která nabízí harmonii mezi městským životem a přírodou. Jen pár minut pěšky odtud najdete Prokopské údolí kam můžete vyrazit na procházku a najít zde klid, který se na běžných sídlištích hledá jen velmi těžko. V okolí se nachází kompletní občanská vybavenost, obchody, lékaři, škola, školka, pošta... V blízké dostupnosti je stanice metra. Byt je po dohodě možné ponechat včetně vybavení. Tento byt nabízí skvělou dispozici pro rodinný život. Každý člen rodiny zde najde své soukromí, zatímco společné prostory podporují rodinnou pohodu. Výborná dostupnost, důmyslné řešení interiéru a klidná lokalita činí z tohoto bytu ideální domov. Přijďte se osobně přesvědčit, že tento byt má vše, co hledáte! Těším se na Vás při prohlídce Petr Firman „Veškeré údaje uvedené v popisu jsou informativní a mohou se v průběhu času lišit. Přesnost informací je zajištěna podle dostupných podkladů, nicméně drobné nesrovnalosti jsou vyhrazeny.“


