Prodej - kanceláře, 616 m²
Prodej kanceláře 616 m², Praha - Nusle
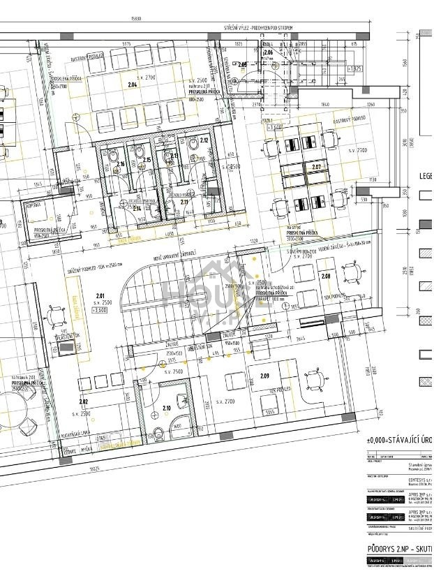
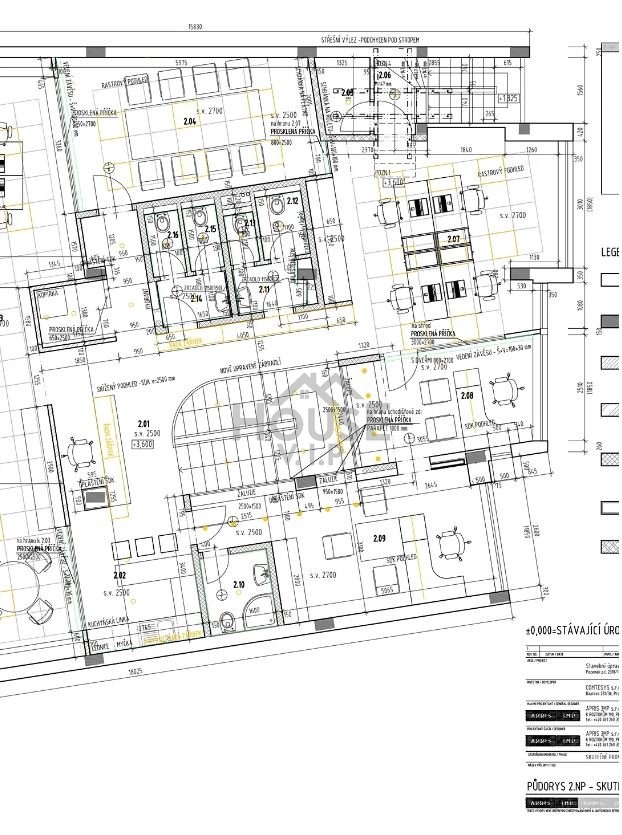
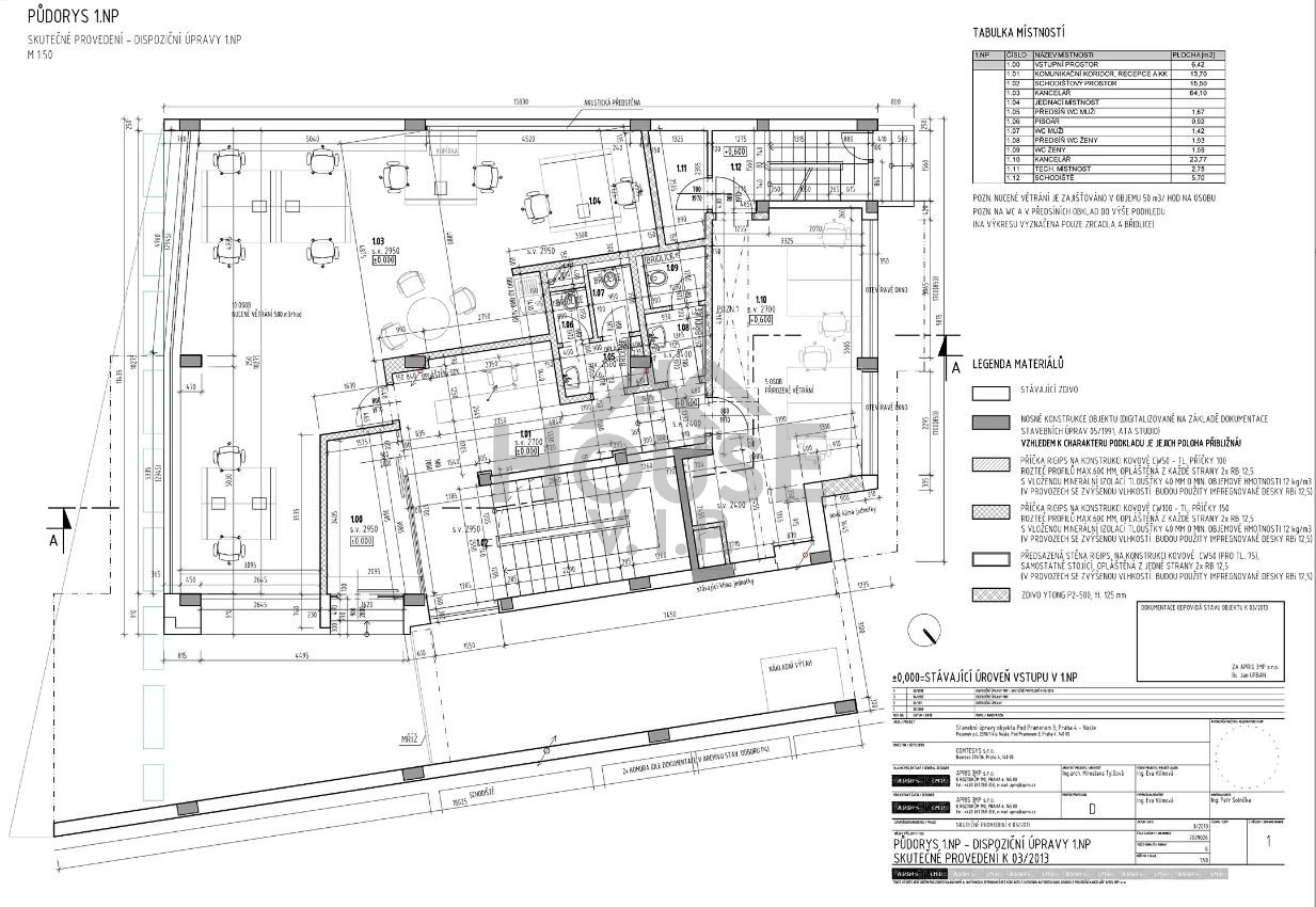
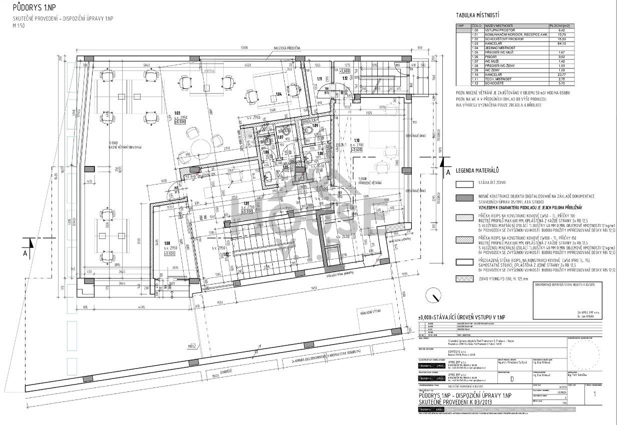
Reprezentativní sídlo vaší firmy v srdci Prahy 4. Moderní kancelářská budova s charakterem, stylem a promyšleným zázemím, která splňuje nároky i těch nejnáročnějších firem. Kombinuje elegantní design s praktickým využitím každého metru a vytváří prostor, kde se dobře pracuje i reprezentuje. Třípodlažní objekt o celkové užitné ploše 616 m² prošel v roce 2009 kompletní rekonstrukcí a dnes nabízí komfort, moderní technologie i dostatek denního světla. V budově se nachází 10 kanceláří s celkovou plochou 372 m², které lze díky otevřenému uspořádání dále členit dle potřeb budoucího majitele. K dispozici je také 12 skladových a technických místností (131 m²), 8 toalet, 1 koupelna a komunikační prostory o rozloze 113 m². V přízemí se nachází elegantní recepce, v patře zasedací místnost a čajová kuchyňka, v suterénu pak jídelna a společenské zázemí pro zaměstnance. Interiéry jsou vybaveny zátěžovými koberci, celoskleněnými příčkami, klimatizací, žaluziemi a bezdotykovými bateriemi v sanitárních prostorech. Celý objekt doplňuje nová luxusní skleněná fasáda, která budově dodává reprezentativní vzhled a velkorysé množství světla. Technicky je objekt plně zasíťován (PC rozvody), vytápění i ohřev vody zajišťuje centrální kotelna, samozřejmostí je bezpečnostní systém s možností napojení na PCO. K dispozici je 5 parkovacích stání na vlastním pozemku a 2 samostatné garáže, které poskytují pohodlí i bezpečné parkování. Nemovitost se nachází v Praze 4 – Nuslích, v ulici Pod Pramenem, v klidné části s vynikající dopravní dostupností a veškerou občanskou vybaveností. Na dosah je metro, MHD, magistrála i centrum města, což z ní činí ideální místo pro sídlo společnosti, firemní pobočku nebo investici do stabilní nemovitosti s výborným výnosem. Budova je nabízena formou převodu 100 % akcií účelově založené akciové společnosti, která nevykonává žádnou jinou činnost. Neváhejte mě kontaktovat a domluvte si osobní prohlídku. Budova na první pohled zaujme, ale teprve naživo oceníte, jak precizně je promyšlená do posledního detailu.


