Prodej bytu, 3+kk, 64 m²
Prodej družstevního bytu 3+kk ve skvělém stavu, Praha 8 - Libeň
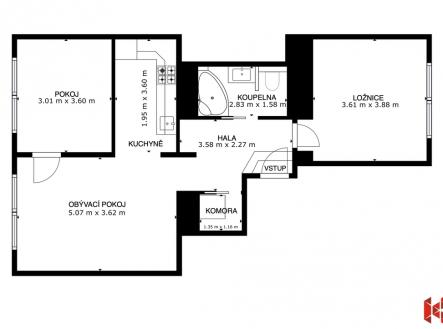
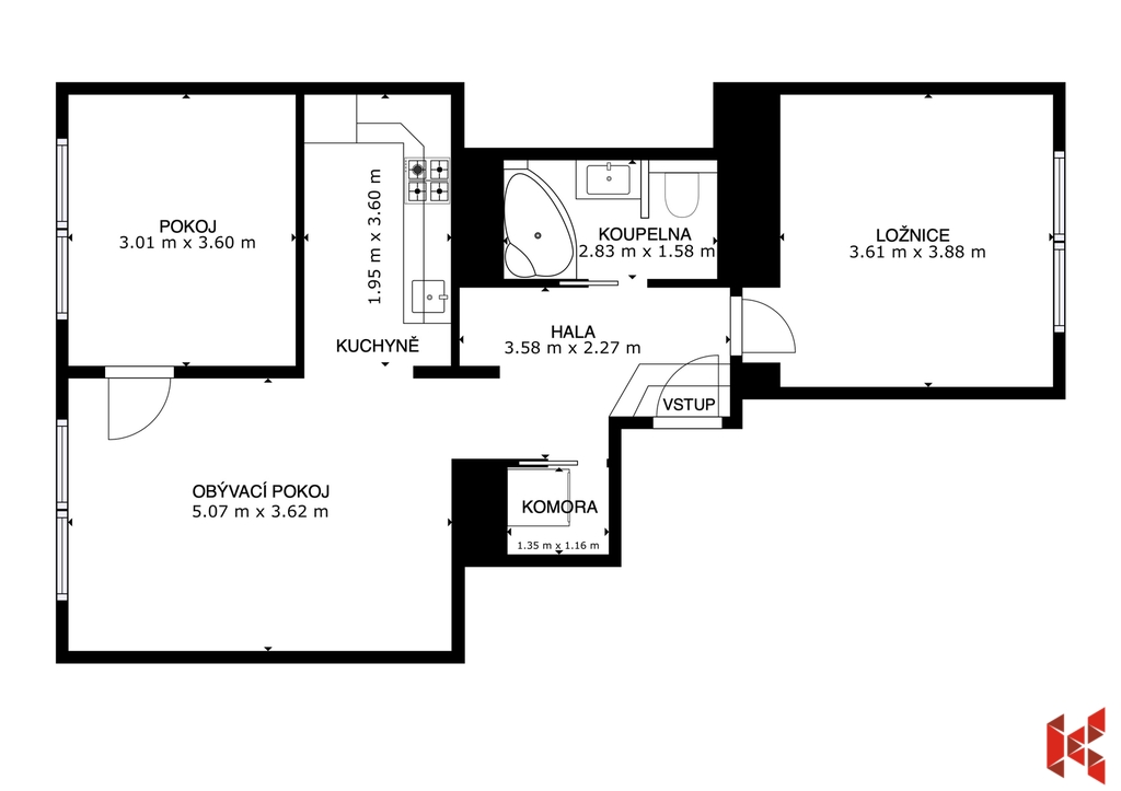
Nabízíme Vám k prodeji družstevní byt o velikosti 61,27 m² s chytře řešenou dispozicí 3+kk v klidné ulici Lindnerova, Praha 8 - Libeň. Byt je ve výborném stavu a připravený rovnou k nastěhování. Byt se nachází ve zvýšeném přízemí, což poskytuje dostatek soukromí pro každodenní život. Co Vám byt nabízí: ✔ Dobře řešená dispozice 3+kk. ✔ Užitnou plochu 61,27 m² (plus dalších 3,5m2 sklepní kóje). ✔ Družstevní vlastnictví se splacenou anuitou. ✔ Skvělý stav. ✔ Připravené ihned k nastěhování. ✔ Zvýšené přízemí (prakticky výše 1. patra). ✔ Obývací pokoj a jedna ložnice orientovány do ulice, druhá ložnice do vnitrobloku. ✔ Klimatizace v bytě. ✔ Plynový kotel k ohřevu vody a vytápění. ✔ Nové podlahy. ✔ Pečlivě vedený bytový dům. ✔ Bohatá občanská vybavenost a dostupnost MHD. ✔ Přesná adresa: Lindnerova 1021/14, Praha - Libeň. ✔ Cenu včetně právního servisu, provize, bezpečné úschovy a všech poplatků. ✔ Možnost financování hypotékou se zástavou jiné nemovitosti. ✔ Prodávající si vyhrazuje právo vybrat kupujícího na základě jím zvolených kritérií. Skvělá lokalita plná života i klidu. Libeň je čtvrť, která se rychle rozvíjí a spojuje to nejlepší z městského života s přírodou na dosah. V okolí najdete vše, co ke spokojenému bydlení potřebujete: ✔ Restaurace a kavárny – včetně vyhlášené restaurace Burger & Bistro u Toma. ✔ Občanskou vybavenost pro rodiny – školy, školky, gymnázium, střední školy, dětská hřiště, DDM, Sokol, poliklinika. ✔ Zeleň a sport – Park pod Korábem, Thomayerovy sady, cyklostezka podél Vltavy – ideální pro běh, jízdu na kole i relaxaci. ✔ Nákupy – Albert, Lidl a Kaufland + nespočet malých praktických obchodů. ✔ Kulturní scéna – Divadlo pod Palmovkou, galerie, koncerty a další akce v okolí. ✔ Rychlé a jednoduché spojení do dalších částí Prahy. Pro více informací a prohlídku jsme k dispozici. Těšíme se.


