Prodej bytu, 5+kk, 123 m²
Prodej bytu 5+kk 123 m²
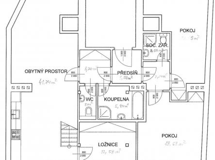
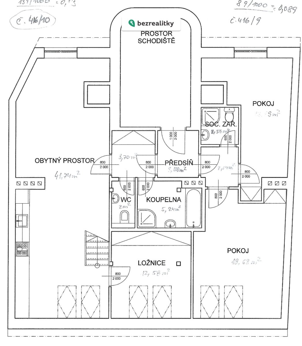
Představte si večer na vlastní střešní terase s výhledem přes pražské střechy, sklenku vína v ruce a klid, který byste v centru Prahy nečekali. Přesně to nabízí tento jedinečný mezonetový byt v srdci Nuslí. Prostorný soubor 2 bytových jednotek o celkové využitelné ploše 123 m² (+ terasa 14 m² + sklep 8 m²) se rozkládá ve 4. a 5. NP (podkroví) cihlového domu z roku 1925 na adrese Boleslavova 416/40, Praha 4. Dům je bez výtahu. Byt tvoří dvě stavebně propojené jednotky — 3+kk (84 m² využitelné plochy) a 1+1 (39 m²) — které lze užívat společně jako velký rodinný byt i odděleně. Byt je aktuálně pronajatý. Je připraven k okamžitému bydlení nebo případné rekonstrukci dle vlastních představ. Ideální jako rodinné bydlení, dvougenerační byt, nebo investice s pronájmem menší jednotky. BYT 3+kk — jednotka 416/10 (využitelná plocha 84 m², mezonet): K bytu patří střešní terasa o výměře 14 m², jižně orientovaná, s výhledem přes střechy Nuslí a okolní zeleň — absolutní unikát tohoto bytu. Vstupní chodbou s hexagonální dlažbou vejdete do hlavního obytného prostoru s kuchyňským koutem. Dřevěné trámy, střešní okna, dřevěné schodiště vedoucí do horního patra a světlá výška stropu až 4,5 metru dodávají prostoru jedinečný podkrovní charakter. Na obytný prostor navazuje ložnice s vestavěnou šatnou. Koupelna s vanou i sprchovým koutem a samostatné WC doplňují dispozici. Z obývacího pokoje vede dřevěné schodiště do horní úrovně — podkrovního pokoje s prosklenými francouzskými dveřmi, které vedou přímo na terasu. V horním patře se nacházejí také dodatečné úložné prostory. Součástí je sklep v suterénu domu (8 m²). Byt prošel částečnou rekonstrukcí v roce 2017. BYT 1+1 — jednotka 416/9 (podlahová plocha 39 m²): Kompletně zrekonstruovaný v roce 2017 — nová moderní kuchyňská linka s vestavnými spotřebiči, troubou, varnou deskou a pračkou. Kuchyň a pokoj, vlastní koupelna s WC a sprchovým koutem, nové laminátové podlahy a kompletní nové rozvody. Vytápění a ohřev TUV zajišťuje společný plynový kotel pro obě jednotky, deskové radiátory. Prodej přímo od majitele — bez provize, bez realitní kanceláře. Prosím, realitní kanceláře nevolejte. LOKALITA: Nusle patří k nejžádanějším rezidenčním čtvrtím Prahy 4 — širší centrum, zděná zástavba. Nejbližší tramvajová zastávka Náměstí Bratří Synků je cca 100 m od domu s návazností na metro trasy C, A i B. Do centra Prahy veřejnou dopravou max. 15 minut. V docházkové vzdálenosti park Jezerka (3,5 ha), Folimanka, školy, školky, obchody, restaurace a OC Arkády Pankrác (5 min. tramvají). Obrovskou výhodou je plánovaná stanice metra D Náměstí Bratří Synků — prakticky za rohem domu — která po dokončení výrazně zvýší hodnotu nemovitosti i komfort dopravy. Neváhejte a domluvte si prohlídku — mezonetový byt s vlastní terasou se v Nuslích objevuje jen výjimečně. Byt je vhodný jako rodinné bydlení, dvougenerační byt, investice s pronájmem menší jednotky, nebo kombinace bydlení a podnikání. Tato nemovitost je určena výhradně přímým zájemcům o koupi. Na inzerát můžete také reagovat přímo na webu Bezrealitky.


