Prodej bytu, 5+1, 143 m²
Prodej bytu 5+1 a větší, 143 m², Praha, ul. Na Farkáně III
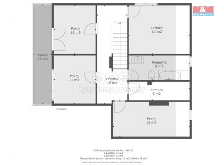
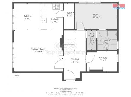
Hledáte prostorný a moderní byt pro velkou rodinu v klidném prostředí a při tom se skvělou dostupností centra Prahy? Nabízíme prostorný mezonetový byt 6+KK o celkové užitné ploše 143 m² + terasa 9 m2, nacházející se nedaleko krásného Prokopského údolí v lokalitě Na Farkáně, v Praze – Radlicích v 5. a 6. nadzemním podlaží cihlového bytového domu s výtahem. Dům prošel velmi zdařilou a citlivou rekonstrukcí. Vlastní byt sestává z velkého obývacího pokoje s kuchyňským a jídelním koutem, ložnice s koupelnou se sprchovým koutem a samostatného WC. Dále je zde komora, která Vám může posloužit i jako šatna nebo pracovna, spíž a prostorná vstupní chodba. V podkroví naleznete 4 prostorné pokoje, velkou koupelnu s vanou a komoru, kterou opět můžete využít i jako šatnu. O teplo a pohodu je postaráno podlahovým vytápěním s plynovým kotlem se samostatnými okruhy pro jednotlivé místnosti, což Vám zaručuje komfortní teplo. Podkroví je vytápěno radiátory. K bytu náleží jedno parkovací místo u domu.


