Prodej bytu, 5+1, 119 m²
Prodej bytu 5+1 119 m²
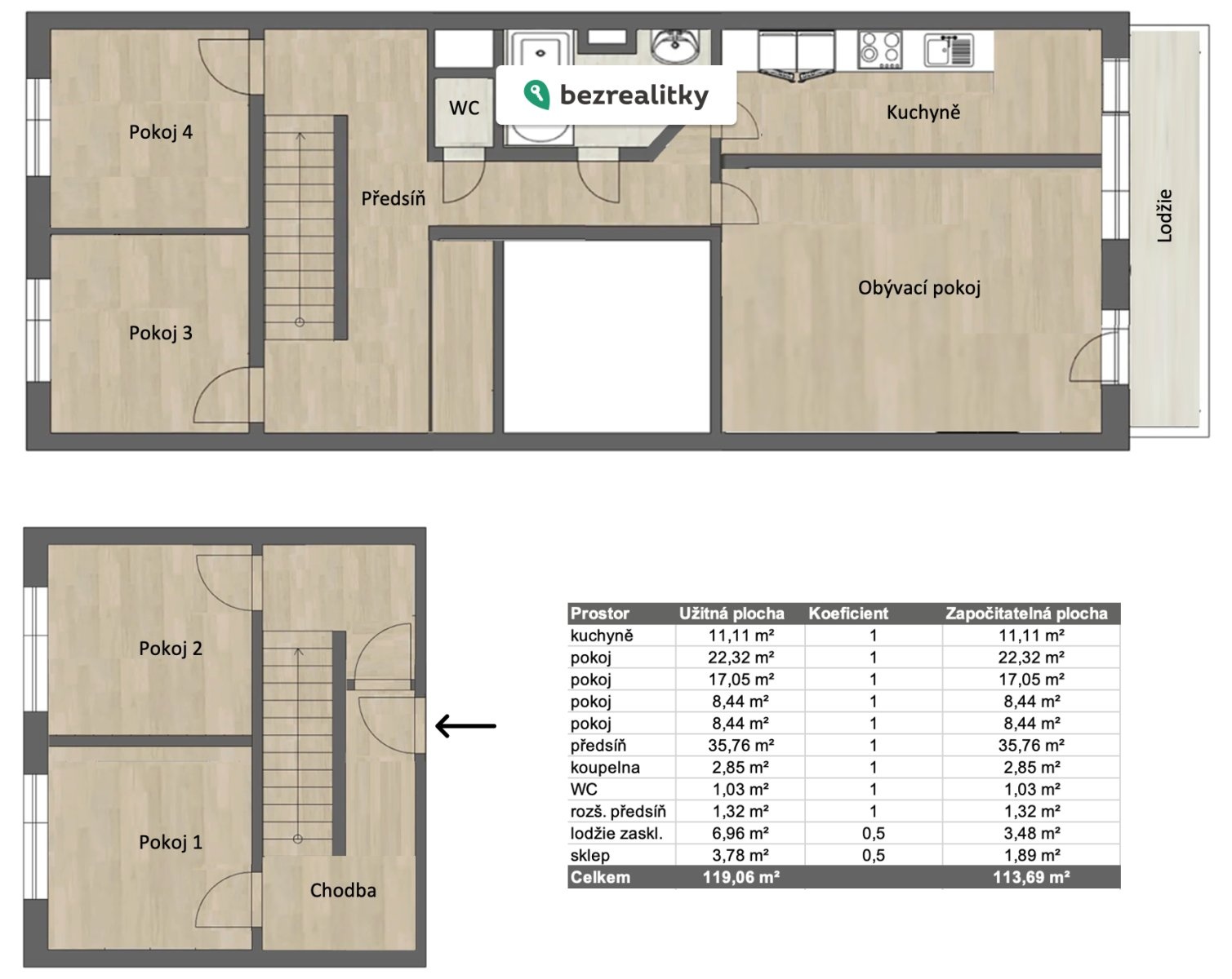
Prostorný rodinný mezonet v posledním patře s výhledy a potenciálem. Přímo od majitele nabízím k prodeji prostorný mezonetový byt 5+1 v posledním patře domu, ideální pro rodinu, která hledá klid, soukromí a možnost vytvořit si bydlení přesně podle vlastních představ. Byt se nachází v klidné části Prahy 5 – Stodůlky, jen pár minut chůze od metra Hůrka a v bezprostřední blízkosti zeleně. Byt o celkové podlahové ploše 119 m² je rozložen do dvou podlaží, což poskytuje dostatek prostoru i soukromí pro větší rodinu. Dominantou bytu je světlý obývací pokoj s výstupem na lodžii o velikosti 7 m², odkud se otevírají ničím nerušené výhledy do okolí. Dispozice nabízí celkem pět obytných místností, samostatnou kuchyni, koupelnu, oddělené WC a dostatek úložných prostor včetně vestavěných skříní. Součástí bytu je také sklepní kóje o velikosti 3,78 m². Byt je udržovaný a ihned obyvatelný, zároveň však představuje výbornou příležitost k rekonstrukci, díky které lze naplno využít jeho prostorový potenciál a vytvořit moderní rodinné bydlení přesně podle vlastního vkusu. Šikovný investor bude případně schopen i vybudovat sociální zázemí ve spodním patře a rozdělit bytovou jednotku na dvě. Pro lepší představu o možnostech budoucí podoby bytu jsou součástí inzerátu také vizualizace možného stavu po rekonstrukci. Dům prošel v posledních letech rozsáhlou modernizací – nové rozvody, moderní výtahy, zateplená střecha, rekonstruované balkony a fasáda z ulice Dominova. Vnitroblok je aktuálně připravován k zateplení. Umístění v posledním patře zajišťuje klidné bydlení bez rušivých vlivů shora. Lokalita nabízí kompletní občanskou vybavenost – školy, školky, obchody, sportoviště i rychlou dostupnost MHD. Byt je v osobním vlastnictví a připraven k převodu. Proč právě tento byt ✔️ Mezonetový byt 5+1 o ploše 119 m² ✔️ Poslední patro – klid, soukromí a výhledy ✔️ Lodžie 7 m² + sklepní kóje 3,78 m² ✔️ Výborná dostupnost metra Hůrka ✔️ Dům po rozsáhlé modernizaci ✔️ Skvělý základ pro rekonstrukci podle vlastních představ Ideální volba pro ty, kteří hledají prostor, klid a dlouhodobou hodnotu v jedné z nejžádanějších částí Prahy 5. Tato nemovitost je určena výhradně přímým zájemcům o koupi. Na inzerát můžete také reagovat přímo na webu Bezrealitky.


