Prodej bytu, 4+kk, 80 m²
Prodej bytu 4+kk 80 m²
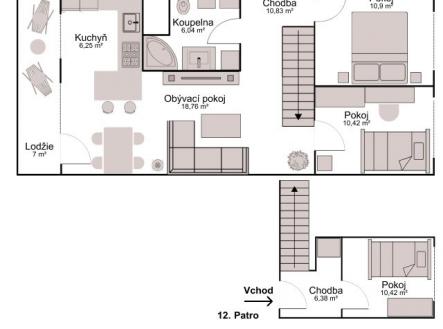
Hledáte moderní rodinné bydlení, kde se kloubí elegantní design, dechberoucí výhledy a skutečné teplo domova? Tento jedinečný mezonetový byt 4+kk po kompletní nákladné rekonstrukci splní představy i těch nejnáročnějších z Vás. Byt se nachází v 11. a 12. patře třináctipatrového domu v atraktivní lokalitě Praha 4 – Krč, jen pár kroků od budoucí stanice metra D Thomayerova nemocnice. S celkovou plochou 80 m², lodžií 7 m² a sklepem 2 m² zaujme nejen svou vzdušností a moderním designem, ale především nádherným panoramatickým výhledem na Prahu. Tento mezonet nabízí oddělenou privátní část v horním patře a světlý, prostorný interiér díky velkým oknům a jižní orientaci. Dispozice zahrnuje prostorný obývací pokoj propojený s moderní kuchyní na míru se všemi vestavěnými značkovými spotřebiči – lednicí, mrazákem, troubou, mikrovlnnou troubou, myčkou a indukční deskou. Kuchyň doplňuje ostrůvek s barovými židlemi. Lodžie je ideální pro ranní kávu nebo relaxaci. Koupelna je vybavena rohovou vanou, toaletou, pračkou a sušičkou. Byt dále nabízí tři samostatné pokoje, které lze využít jako ložnici, dětský pokoj, pracovnu nebo šatnu, a praktickou chodbu. Součástí bytu je také sklep v suterénu domu. Byt prošel kompletní modernizací v roce 2023 s důrazem na kvalitu a detail. V celém bytě jsou položeny kvalitní vinylové podlahy, v koupelně velkoformátová dlažba. Instalována jsou nová plastová okna s trojskly, podhledy s bodovým osvětlením, dveře na míru značky Sapeli a kompletně nová elektroinstalace. Dům je vybaven kamerovým systémem a čtyřmi výtahy, což zajišťuje vysokou míru bezpečnosti a komfortu. Měsíční poplatky činí 1 608 Kč do fondu oprav a 4 012 Kč za služby. Parkování je možné před domem, případně si lze pronajmout vyhrazené místo na parkovišti Hurbanova. Zastávka MHD Zálesí nebo Sídliště Krč jsou pouhé 3 minuty chůze od domu. Lokalita je klidná a nabízí kompletní občanskou vybavenost v docházkové vzdálenosti. Přímo před domem se nachází prestižní školky, v blízkosti školy Nový PORG a U Krčského lesa, obchody jako Lidl (5 minut chůze), Albert (3 minuty), Jysk, Pepco, potraviny, Ovocný Světozor, EUC lékárna a Thomayerova Nemocnice. Okolí nabízí spoustu dětských hřišť a do Kunratického lesa se dostanete během 10 minut chůze. Sportovní nadšenci ocení Form Factory 3 minuty od domu, velké sportoviště Domyno Fitness a nedalekou možnost wellness, golfu a restaurace v Chateau St. Havel v Krčském zámku. Skvělé dopravní spojení do centra a zároveň blízkost přírody činí tuto adresu ideální pro rodiny i náročné klienty, kteří hledají moderní, pohodlné bydlení s jedinečnou atmosférou. Byt prodávám přímo jako majitelka, takže se vyhnete provizi realitní kanceláři. Ráda vám poradím a nasměruji na možnosti výhodného financování. Pokud budete mít zájem, neváhejte mě kontaktovat – ráda poskytnu více informací a domluvím si s vámi osobní prohlídku podle vašich možností. Prodávající si vyhrazuje právo vybrat kupujícího dle vlastního uvážení. Tato nemovitost je určena výhradně přímým zájemcům o koupi. Na inzerát můžete také reagovat přímo na webu Bezrealitky: https://www.bezrealitky.cz/nemovitosti-byty-domy/941597-nabidka-prodej-bytu-hurbanova-praha


