Prodej bytu, 4+kk, 115 m²
Prodej bytu 4+kk 115 m², Praha - Strašnice
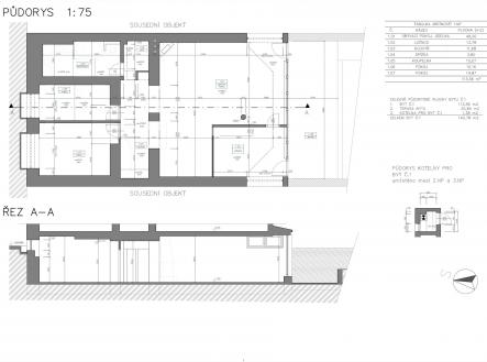
Originální přízemní byt 4+kk se zahradou a terasou – soukromí v srdci Prahy 10 Hledáte prostorné, moderní a originální bydlení, kde budete mít vlastní kus zeleně, naprosté soukromí a město na dosah? Takový je byt 4+kk s celkovou užitnou plochou 144 m² a soukromou zahradou s terasou (179 m² navíc) v klidné části Prahy 10. Hlavní výhody bytu: - jižní orientace - samostatný vstup z vnitrobloku - parkování přímo na pozemku - osvětlené schodiště od branky k bytu - terasa 26 m² se soukromím díky vzrostlým stromům - zahrada celkem 163 m² - velkorysý obývací pokoj spojený s kuchyní a jídelnou (60+ m²) - krb a podlahové vytápění pro maximální komfort - kvalitní použité materiály - voda přivedena na terasu - příprava elektřiny pro automatickou bránu - skvělá dostupnost MHD (tramvaj v pěší vzdálenosti, blízkost metra A) - kompletní občanská vybavenost a parky v okolí Prostor, který jinde nenajdete: Dominantou bytu je velkorysý obývací pokoj spojený s jídelnou a kuchyňským koutem. Celý prostor je prosvětlen velkoformátovými okny s výhledem na zahradu s terasou, která je přístupná i dveřmi z ložnice. Kuchyně zaujme kamennými deskami a originálním provedením se zrcadly, které prostor opticky zvětšují. Za kuchyní jsou dva další pokoje, praktická komora a koupelna. Vytápění bytu je řešeno podlahovým topením a radiátory. Zahrada, kde zapomenete, že jste v Praze: Oplocený pozemek nabízí celkem 179 m² (82 m² v osobní vlastnictví a 97 m² v dlouhodobém pronájmu od Hl. m.). Díky vzrostlým stromům a situováním pozemku do vnitrobloku poskytuje terasa se zahradou naprosté soukromí. Najdete zde prostor jak pro relaxaci, tak pro pěstitelské aktivity. Pro pohodlnou údržbu je na terasu zavedena voda. U brány je připravena elektřina pro instalaci automatického pohonu brány na dálkové ovládání. Lokalita: Kounická ulice, Praha 10 – klid a dostupnost v jednom Byt se nachází v oblíbené a klidné rezidenční části Prahy 10 – Strašnice. Perfektní dopravní dostupnost – v blízkosti tramvaje, autobusy i metro (Skalka, Strašnická). Občanská vybavenost – školy, školky, obchody, lékaři i sportoviště v pěší dostupnosti. Zeleň a odpočinek – nedaleko Malešický park, Gutovka či Park Na Solidaritě. Jedná se o lokalitu ideální pro rodiny s dětmi i pro každého, kdo hledá spojení městského komfortu s klidným bydlením uprostřed zeleně. Ozvěte se, pokud chcete víc než jen byt – chcete domov s atmosférou.


