Prodej bytu, 3+kk, 66 m²
Prodej bytu 3+kk v Praze, ul. Žiželická
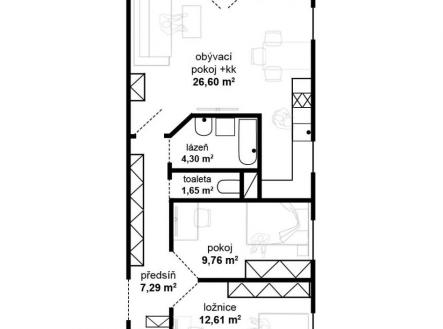
Nabízím k prodeji velmi zajímavý byt, který má podlahovou plochu 66 m² a nachází se ve 4.patře bez výtahu. Dominantou obývacího pokoje je francouzské okno se vstupem na lodžii o velikosti 5,5 m², orientované na jihovýchod, díky čemuž je byt krásně prosvětlený po celý den a působí velmi vzdušně a příjemně. Výjimečným benefitem je vlastní půdní prostor přístupný přímo z bytu a také šatna, která ušetří mnoho prostoru. Byt se nachází v klidné a bezpečné části sídliště Rohožník. Do přírody je to doslova pár kroků, ať už do přírodního parku Škvorecká (Králičina) obora nebo do Klánovického lesoparku. Cyklotrasa A25 vás dovede až do centra města. Domluvte si prohlídku tohoto vyjimečného bytu ještě dnes.


