Prodej bytu, 3+kk, 122 m²
Prodej bytu 3+kk, 93 m2/terasa/předzahrádka 26 m2/sklep/garáž - Praha - Dolní Chabry, novostavba
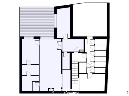
Byt S.1. je největší v projektu Perštejnská (pouze 7 bytů) a je jediný na patře. Je to byt přízemní orientovaný do dvora s předzahrádkou/terasou o velikosti 26 m2. Vstup je přes dvoje francouzské dveře na terasu z obývacího pokoje a jedné ložnice. Obytná plocha je 93 m2 . K příslušenství patří garáž a sklepní kóje hned vedle bytu. Byt je již téměř dokončen a je možné si ho osobně na místě prohlédnout. Byt má vnitřní rekuperaci vzduchu a přípravu na idividuální klimatizaci. Podlahy jsou dřevěné, okna hliníková s trojskly, k dispozici jsou dvě koupelny. Nabízíme jedinečné bydlení v projektu Perštejnská, kde iluze Prahy mizí . Jedná se o komorní projekt o sedmi bytových jednotkách ve staré původní zástavbě v Dolních Chabrech na Praze 8. Dům je již téměř dokončen, kolaudace domu proběhne do konce roku 2025. Nastěhování následně. Neváhejte kontaktovat makléře, ať Vám tato jedinečná šance neuteče. Zobrazené fotografie interiéru jsou pouze ilustrační a jedná se o vizualizace, nikoliv o skutečný stav dokončeného bytu.
Středočeské reality, spol. s r.o.


