Prodej bytu, 3+kk, 89 m²
Prodej bytu 3+kk 89 m², teresa, zahrada, Praha - Štěrboholy
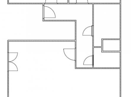
Exkluzivně si vám dovolujeme nabídnout výjimečný byt v komorním projektu pouze o třech jednotkách se zahradou.Pouze jeden byt na patře, přístupovou chodbu lze také využít. Maximální soukromí. Bydlení s úžasným výhledem do zeleně, kde budete každý den v kontaktu s přírodou a klidem. Velmi klidná lokalitě Pod areálem v Praze 10 zaručuje jedinečný životní styl, na rozhraní centra města a přírody. V těsné blízkosti lesík, či vodní nádrž Slatina. Napojení na cyklostezky a možnosti nekonečných procházek. Zároveň nedaleko Europark Štěrboholy (supermarkety, lékárny, MŠ i ZŠ, lékaři apod.). Do centra Prahy se dostanete pohodlně do 20 min. Byt o šikovné dispozici 3+kk s neprůchozími pokoji a terasou, nabízí dostatek prostoru pro pohodlné bydlení pro rodinu. Byt je velmi dobře udržovaný a nabízí moderní vybavení včetně terasy, která vás vybízí ke každodenní relaxaci s výhledem do zahrady. Vzdušný obytný prostror s velmi pěknou kuchyňskou linkou se všemi spotřebiči. Částečně zařízený byt v cihlové budově je skvělou investicí do vaší budoucnosti. Příjemné prostředí a prostornost bytu vytváří dokonalé místo pro vaše bydlení. K bytu náleží sklep. Topení řešeno plynovým kotlem. Velmi příznivé náklady na bydlení. PENB nebyl dodán, zobrazuje se tak třída G. Osobní vlastnictví, hypotéka lze. Doporučujeme prohlídku.


