Pronájem bytu, 3+kk, 70 m²
Prodej bytu 3+kk (70 m2) + balkon, Oktábcových, Praha 9 - Vysočany
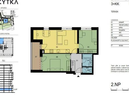
K dlouhodobému pronájmu nabízíme příjemný byt 3+kk (69,5 m) s prostornou terasou (7,2 m), který se nachází v 2 patře novostavby Rezidence Výhledy Rokytka v Praze 9 Vysočanech, ulice Oktábcových. V ceně pronájmu je zahrnuto garážové stání a velký, zděný sklep (6,7 m). Objekt je zabezpečen kamerovým systémem a v suterénu je k dispozici kolárna se sprchou. Byt je částečně vybavený dle uvedených fotografií, kromě TV, pračky, dvoulůžkové postele a sedací soupravy, které nejsou součástí pronájmu. Dům je energetické třídy B, tedy velmi úsporné, což zajišťuje nízké měsíční náklady na provoz. Rezidence se nachází v klidné části Prahy 9 a nabízí moderní, komfortní a bezbariérové bydlení vhodné pro páry i rodiny. Je obklopené zelení, sportovišti i dětskými prolézačkami, v těsné blízkosti se nachází park Rokytka, ideální pro procházky, sport i relaxaci a navazující cyklostezka. Lokalita nabízí vynikající dopravní dostupnost 2 minuty pěšky na stanici metra B Kolbenova, tak i na tramvajovou zastávku Kolbenova. V okolí je kompletní občanská vybavenost, školy, školky, restaurace, fitness centra i nákupní galerie Harfa a Fénix. Ideální pro ty, kteří hledají moderní a klidné bydlení s vynikající dostupností do centra Prahy.


