Prodej bytu, 3+1, 76 m²
Prodej bytu 3+1 76 m²
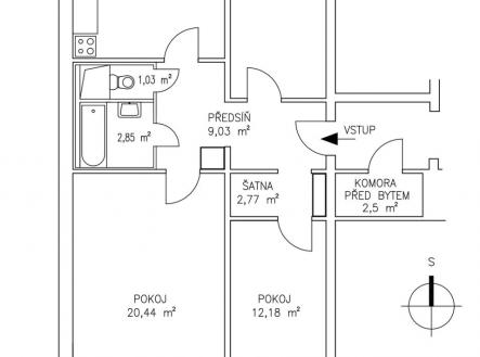
Nabízím k prodeji velmi příjemný, světlý byt o dispozici 3+1 a výměře 76 m², umístěný v 7. patře kompletně zrekonstruovaného a zatepleného domu se dvěma výtahy. Byt má neprůchozí pokoje, prostornou kuchyň i velkorysou chodbu s množstvím úložných prostor. Součástí je také zasklená lodžie 3 m² u jedné z ložnic a praktická komora přímo před bytem. Byt je v udržovaném původním stavu a představuje ideální příležitost upravit si bydlení podle vlastních představ. Díky novým plastovým oknům je byt tichý a příjemně světlý. Byt se nachází v místě s výbornou občanskou vybaveností – přímo před domem je MŠ, základní škola i gymnázium. Na metro B dojdete pohodlně pěšky, případně lze využít autobus se zastávkou u domu. Jen pár minut od domu se nachází Centrum Černý Most se všemi službami a obchody. Milovníky přírody potěší park U Čeňku a přírodní rezervace Pískovna v docházkové vzdálenosti s možností procházky kolem rybníků směrem k Dolním Počernicím se zámeckým parkem. Rychlé spojení po Praze zajistí snadný nájezd na Pražský okruh. Tento byt je ideální volbou pro ty, kteří hledají dobře řešený prostor v klidné lokalitě, s perfektní dopravní dostupností i přírodou na dosah, a chtějí si bydlení upravit přesně podle sebe. Pokud máte zájem o prohlídku nebo více informací, neváhejte mě kontaktovat. Tato nemovitost je určena výhradně přímým zájemcům o koupi. Na inzerát můžete také reagovat přímo na webu Bezrealitky.


