Prodej bytu, 3+1, 76 m²
Prodej bytu 3+1 76 m²
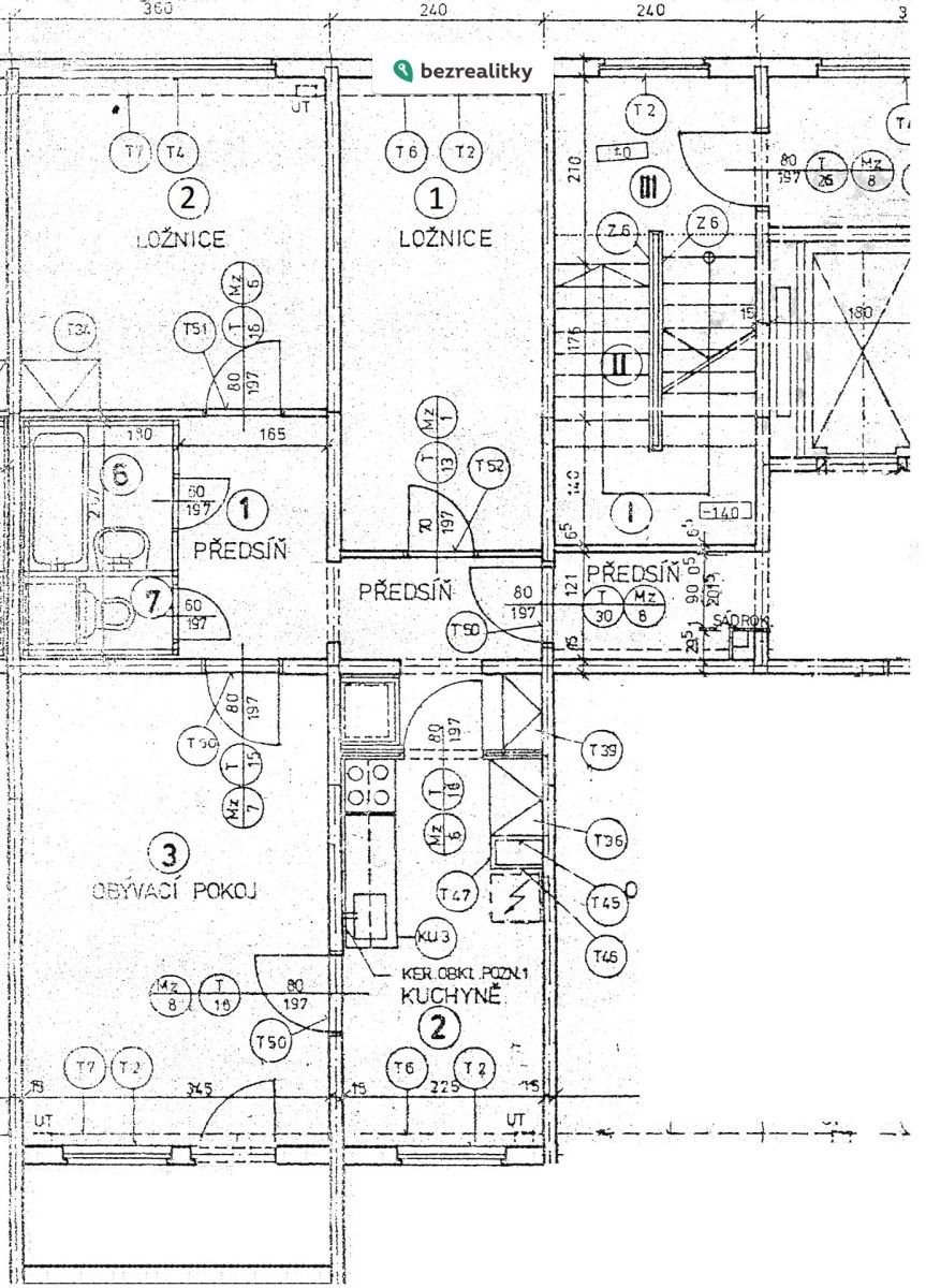
Jako přímý majitel Vám nabízím světlý a prostorný byt pro celou rodinu 3+1 (76 m²) včetně lodžie, nedaleko metra na Pražském Chodově Dispozice bytu: Byt po částečné rekonstrukci zděná koupelna a záchod, v pokojích plovoucí podlahy a elektroinstalace ve zdi. Předsíň a kuchyň v původním stavu. Byt je umístěný ve 3. NP (2. patro) perfektně udržovaného domu. K bytu přináleží i kóje pro skladování větších předmětů. Dispozice domu: Dům je zateplen, energetická třída B, plastová okna opravená střecha, moderní výtahy, rekonstruované interiéry, Lokalita: Umístění domu na Praze-Chodov spojuje klid s výbornou dostupností, 11 minut chůze na metro C – Chodov a do OC Westfield, Dále školy a školky obchody v bezprostřední blízkosti a také plavecký bazén, dále poliklinika. Blízkost Kunratického lesa nabízí aktivní odpočinek. Typ vlastnictví a cena : Družstevní (anuita plně splacena, převod do OV zatím nikoliv, později), cena 8.250.000,-Kč Kontakt pro domluvení prohlídky: Tato nemovitost je určena výhradně přímým zájemcům o koupi. Na inzerát můžete také reagovat přímo na webu Bezrealitky.


