Prodej bytu, 3+1, 73 m²
Prodej bytu 3+1 73 m²
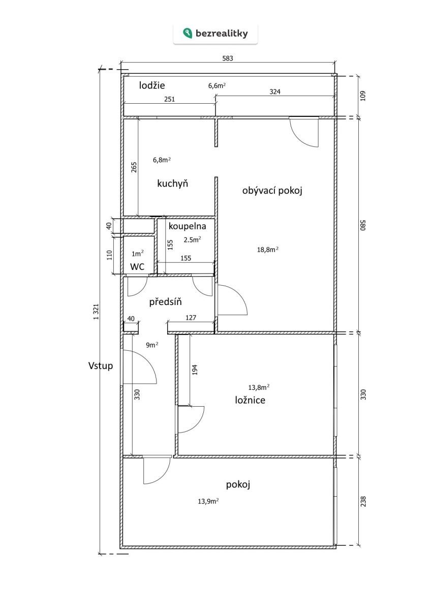
Exkluzivní nabídka moderně zrekonstruovaného 3+1 73 m² v atraktivní rezidenční lokalitě jen pár minut chůze od metra Strašnická. Byt má 66 m² podlahové plochy, 6,6 m² lodžii, 2 m² sklep. Díky své poloze v 7. patře nabízí úchvatný výhled na Prahu, díky jižní i západní orientaci. Dům má devět pater, dva výtahy a je po kompletní revitalizaci, byla dělána fasáda a jsou zde plastová okna, právě dodělané chodby a vstupy do budovy. Byt má nové rozvody vody a elektřiny, zasklená lodžie, nové bezpečnostní vchodové dveře, závěsné WC. Prostor koupelny je připravený na vanu, nebo sprchový kout a kuchyň je taktéž připravena na vybavení podle vkusu nového majitele. Pozor!!! Vyberete si koupelnu a kuchyň jakou si přejete a instalaci máte od nás zdarma!!! Podlahy v obytných místnostech jsou z voděodolného premium lamina. Parkování je možné přímo před domem, jsou zde modré zóny. Jedná se o žádanou lokalitu s kompletní občanskou vybaveností, v docházkové vzdálenosti jsou školy, obchody, restaurace, kavárny, hřiště, park Gutovka, lanové centrum, skatepark, minigolf, cyklostezky apod. Výborná dostupnost do centra, zastávka metra Strašnická je cca 5 minut chůze, zastávka tramvaje pak jen 30 sekund od domu. Atraktivní poloha a dobrá dostupnost z něj dělají i skvělou investiční příležitost. Osobní vlastnictví s možností financovat hypotečním úvěrem. Ukazatel energetické náročnosti: C Tato nemovitost je určena výhradně přímým zájemcům o koupi. Na inzerát můžete také reagovat přímo na webu Bezrealitky: https://www.bezrealitky.cz/nemovitosti-byty-domy/973546-nabidka-prodej-bytu-prubezna-praha


