Prodej bytu, 2+kk, 55 m²
Prodej bytu 2+kk 55 m², Praha - Smíchov
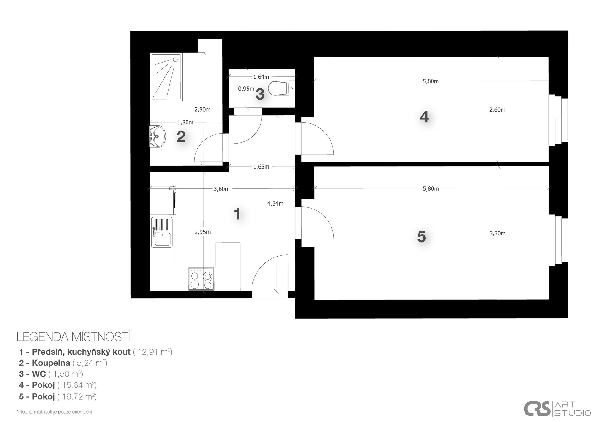
Bydlení kousek od Vltavy a Janáčkova nábřeží | 6. NP s výtahem v realizaci Nabízíme k prodeji bytovou jednotku č. 17/1225 o celkové ploše 58,3 m² (užitná plocha místností 55,2 m²), situovanou v 6. nadzemním podlaží krásného secesního domu v Lesnické ulici na Smíchově. Byt je po celkové rekonstrukci ve velmi dobrém stavu. Okna jsou orientována do vnitrobloku, takže po jejich otevření neuslyšíte ruch velkoměsta, ale pocítíte atmosféru tichého dvora mimo dosah ruchu z ulice. Dispozice: Předsíň s kuchyňským koutem (vč. myčky) – 12,9 m² Pokoj – 15,7 m² Pokoj – 19,7 m² Koupelna (sprcha, umyvadlo, elektrický bojler) – 5,3 m² Samostatné WC (nový elektrický kotel) – 1,6 m² Dispozice nabízí komfortní rozdělení na denní a klidovou část, vhodné jak pro vlastní bydlení, tak i jako investici k pronájmu v dlouhodobě žádané lokalitě. Měsíční zálohy na služby činí 500 Kč na osobu, elektřina se hradí samostatně dle vlastní spotřeby. Dům si zachoval historický charakter s původními secesními prvky ve společných prostorách. Velkým benefitem je plánovaná výstavba výtahu, kterou SVJ již realizuje. U bytu v 6. NP jde o zásadní zvýšení komfortu i budoucí hodnoty nemovitosti. Lesnická ulice se nachází v klidné části Smíchova, jen pár kroků od Janáčkova nábřeží a Smíchovské náplavky. V docházkové vzdálenosti je metro B Anděl, obchodní centrum Nový Smíchov i kompletní občanská vybavenost. Spojení historického domu s citlivě provedenou rekonstrukcí a plánovanou výstavbou výtahu navíc dává této nemovitosti dlouhodobý potenciál – jak pro vlastní pohodlné bydlení, tak jako stabilní investici do budoucna.

